EasyManua.ls Logo

Comtech EF Data CDM-760 - Bulk Configuration Strings

Comtech EF Data CDM-760
441 pages
Print Icon
To Next Page IconTo Next Page
To Next Page IconTo Next Page
To Previous Page IconTo Previous Page
To Previous Page IconTo Previous Page
Loading...
Serial Interface Operation Revision 3
CDM-760 Advanced High-Speed Trunking Modem MN-CDM760
8–33
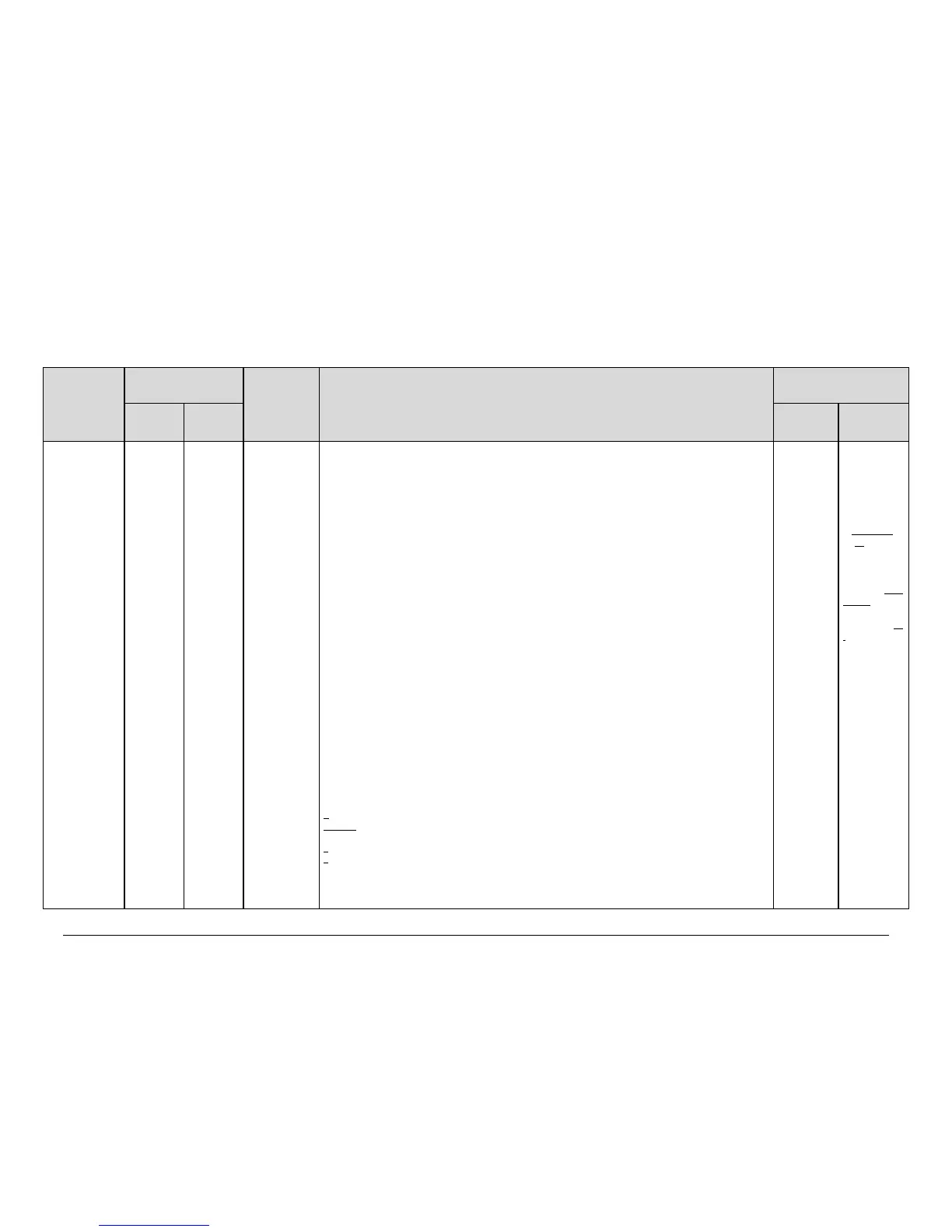
8.5.9 Bulk Configuration Strings
Parameter Type
Controller-to-Target
Instruction Code and
Qualifier
Arguments for
Command or
Query
Description of Arguments
(Note that all arguments are ASCII numeric codes from 48 to 57)
Target-to-Controller
(see Description of Arguments)
Command Query
Response to
Command
Response to
Query
Global
Configuration
MGC=
MGC?
245 bytes,
numerical entries,
fixed values and
delimiters
Command or Query.
Sets or returns Global Configuration of CDM-760, in the form shown in the ‘Response to Query’ column, where:
MGC=
MGC?
MGC*
MGC#
MGC=FFFF.FF
FFSSSSSS.SS
SMMBVAGGG
GGGTLsPP.PXf
fff.ffffssssss.sss
mmbvagggggge
e.ebbbrcdf12irp
3nwBBBCCC
C
CCab
DDddEee
HHhhJJjjlllxxTe
eeeeeeeeeeeee
eeeeeeeeeeeee
eeeeeeeeecddd
deeeeeuuu.uuu.
uuu.uuu.uuvvv.v
vv.vvv.vvvGHffff
f111111111111
1111111122222
2222222222222
22
FFFF.FFFF=Tx Frequency
SSSSSS.SSS=TX Symbol Rate
MM=Tx ModCod
B=Tx Framing Mode
V=Tx Spectrum Inversion
A=Tx Alpha Rolloff
GGGGGG=Tx Gold Code
T=Tx Pilot
L=Tx Pilot Location
sPP.P=Tx Power Level
X=Tx Carrier State
ffff.ffff=Rx Frequency
ssssss.sss=Rx Symbol Rate
mm=Rx ModCod
b=Rx Framing Mode
v=Rx Spectrum Inversion
a=Rx Alpha Rolloff
gggggg=Rx Gold Code
ee.e=Es/No Alarm Point
bbb=WAN Buffer Length
r=External Reference Frequency Selection
c=Enable Payload Compression
d=Learning and Aging
f=Flow Control
1=GigE Port 1 Control
2=GigE Port 2 Control
i=in band signaling control
r=LNB Reference Enable
p=LNB DC Power Supply Control
3=Opt Eth Port Control
n=Network Specification (NetSpec)
w=CnC mode
BBBCCC=CnC/DPD search delays
CCC=LNB High Current Limit Value
a=Local Carrier Loss Action
b=Operating Mode
DDddEee=ACM Operating Parameters
HHhhJJjj=ACM Degradation Configuration
III=LNB Low Current Limit Value
xx=ACM Degradation Configuration
same as TFQ
same as TSR
same as TMC
same as TFM
same as TSI
same as TAR
same as TGS
same as TPI
same as TLP
same as TPL
same as TXO
same as RFQ
same as RSR
same as RMC
same as RFM
same as RSI
same as RAR
same as RGS
same as EBA
same as WBL
same as EFR
same as EPC
same as LRN
same as GFC
same as LC1
same as LC2
same as SLC
same as LNR
same as LPS
same as LC3
same as NET
same as CNM
same as CSD
same as LNH
same as LCL
same as OPM
same as ACM
same as first 8 bytes of ADC
same as LNL
same as last 2 bytes of ADC

Table of Contents

Related product manuals