EasyManua.ls Logo

SENSTAR OmniTrax - Page 72

SENSTAR OmniTrax
252 pages
Print Icon
To Next Page IconTo Next Page
To Next Page IconTo Next Page
To Previous Page IconTo Previous Page
To Previous Page IconTo Previous Page
Loading...
System drawings
Page 72 OmniTrax Product Guide
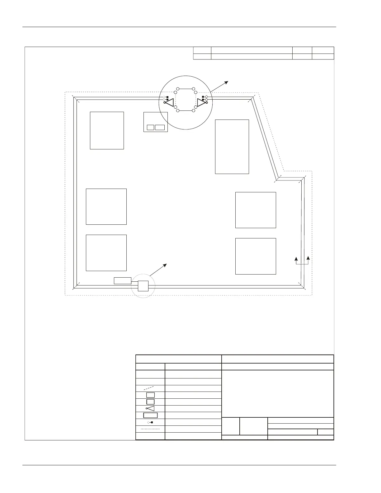
Figure 39: Sample site drawing (standalone system - block diagram)
LTR
DESCRIPTION
CONFIGURATION BASELINE
DATE
APPD
See View 'A'
Zone 2
Zone 9
MW Zone 1
Security
Control
Administration
Health Care/
Education
Center
Zone 3
Zone 4
Living Unit 4
Living Unit 3
Zone 5
Living Unit 1
Living Unit 2
Zone 8
See View 'B'
Zone 6
Zone 7
NOTE:
1. Fences are 8 m apart; cables are buried 1.5 m apart
(inside perimeter fence not shown).
2. Refer to site survey for distance measurements.
3. See table on Page 3 for Processor configurations.
4. Zone layout sequential clockwise.
5. Relay output alarm communication cable and
EIA-422 data cables bundled along fence top between
processor and NIU.
LEGEND
SYMBOL
MEANING
OmniTrax PROCESSOR
ALARM ZONE LABEL
ALARM ZONE BOUNDARY
NETWORK INTERFACE UNIT
NM & UCM COMPUTER
UltraWave MICROWAVE
POWER SUPPLY
TERMINATOR
OUTSIDE PERIMETER FENCE
Sample OmniTrax OC2 Site Plan
1 Standalone processor, 1 Microwave
(Relay Output Alarm Communications
NM & UCM Computer for Remote
Maintenance and Diagnostic Activity)
SIZE
FSCM No.
PART NUMBER
DRAWING NUMBER
VAR.
3
OF
1
SHEET
SCALE
Zone #
PROCESSOR CABLE ID
B
Section
A-A
P1
P1
NIU
PC
12 V
P1-A
P1-A
P1-B
12 V
PC
NIU

Table of Contents

Related product manuals