EasyManua.ls Logo

SENSTAR OmniTrax - Page 75

SENSTAR OmniTrax
252 pages
Print Icon
To Next Page IconTo Next Page
To Next Page IconTo Next Page
To Previous Page IconTo Previous Page
To Previous Page IconTo Previous Page
Loading...
System drawings
OmniTrax Product Guide Page 75
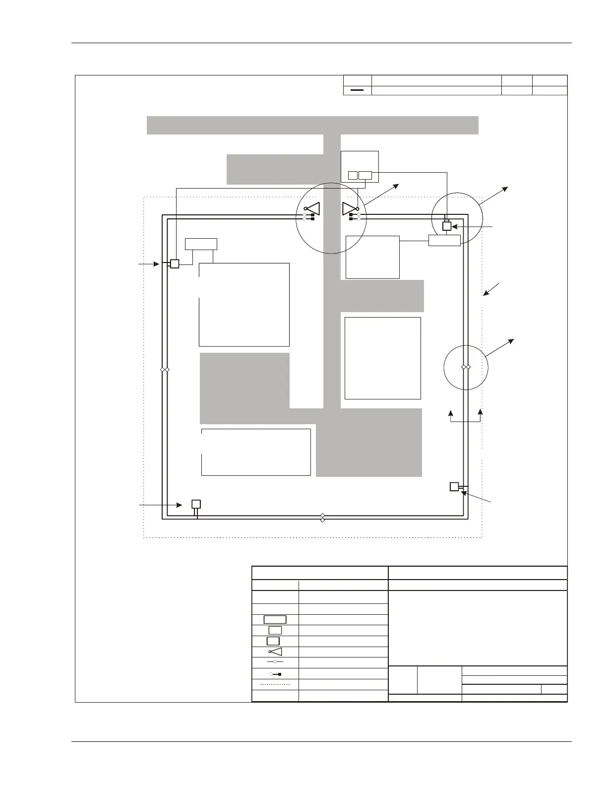
Figure 42: Sample site drawing (network system - block diagram)
B
PC
48 VDC
NIU
SL
P1-A
LTR
DESCRIPTION
CONFIGURATION BASELINE
DATE
APPD
Main St.
Visitor Parking
EIA-422
North
EIA-422
Security
Control
Administration
Processor #1
F4 in, F3 out
distributes power
over TX cable
Processor #4
F3 in, F4 out
distributes power
over RX cable
Z36 - Z39
Z31 - Z35
Z1 - Z4
Z5 - Z9
Building #1
Building #2
Parking
Parking
Z26 - Z30
Z10 - Z15
P1-A
See View 'C'
Processor #2
F3 & F4 out
Processor #3
F3 & F4 out
Z21 - Z25
Z16 - Z20
External Perimeter
Fence
LEGEND
SYMBOL
MEANING
OmniTrax PROCESSOR
SECURITY LIGHTING
NETWORK POWER SUPPLY
NETWORK INTERFACE UNIT
UCM & NM COMPUTER
UltraWave MICROWAVE
DECOUPLER
TERMINATOR
OUTSIDE PERIMETER FENCE
PROCESSOR CABLE ID
SIZE
FSCM No.
PART NUMBER
DRAWING NUMBER
VAR.
51
SHEET
SCALE
Sample OmniTrax OC2 Site Plan
(4 Processors, 1 Microwave)
OF
Processor #
NOTE:
1. Fences are 7.5 m apart; cables are buried 1.5 m apart
(inside fence not shown).
2. Refer to site survey for distance measurements.
3. See table on Page 4 for Processor configurations.
4. Zone layout sequential clockwise.
Shipping
See View 'A'
See View 'B'
SL10 - SL15
SL16 - SL20
SL21 - SL25
SL26 - SL30
SL31 - SL35
SL36 - SL39
SL1 - SL4
SL5 - SL9
PC
NIU
48VDC
48VDC

Table of Contents

Related product manuals