EasyManua.ls Logo

Case IH DCX101 - Hydraulic Diagram

Case IH DCX101
260 pages
Print Icon
To Next Page IconTo Next Page
To Next Page IconTo Next Page
To Previous Page IconTo Previous Page
To Previous Page IconTo Previous Page
Loading...
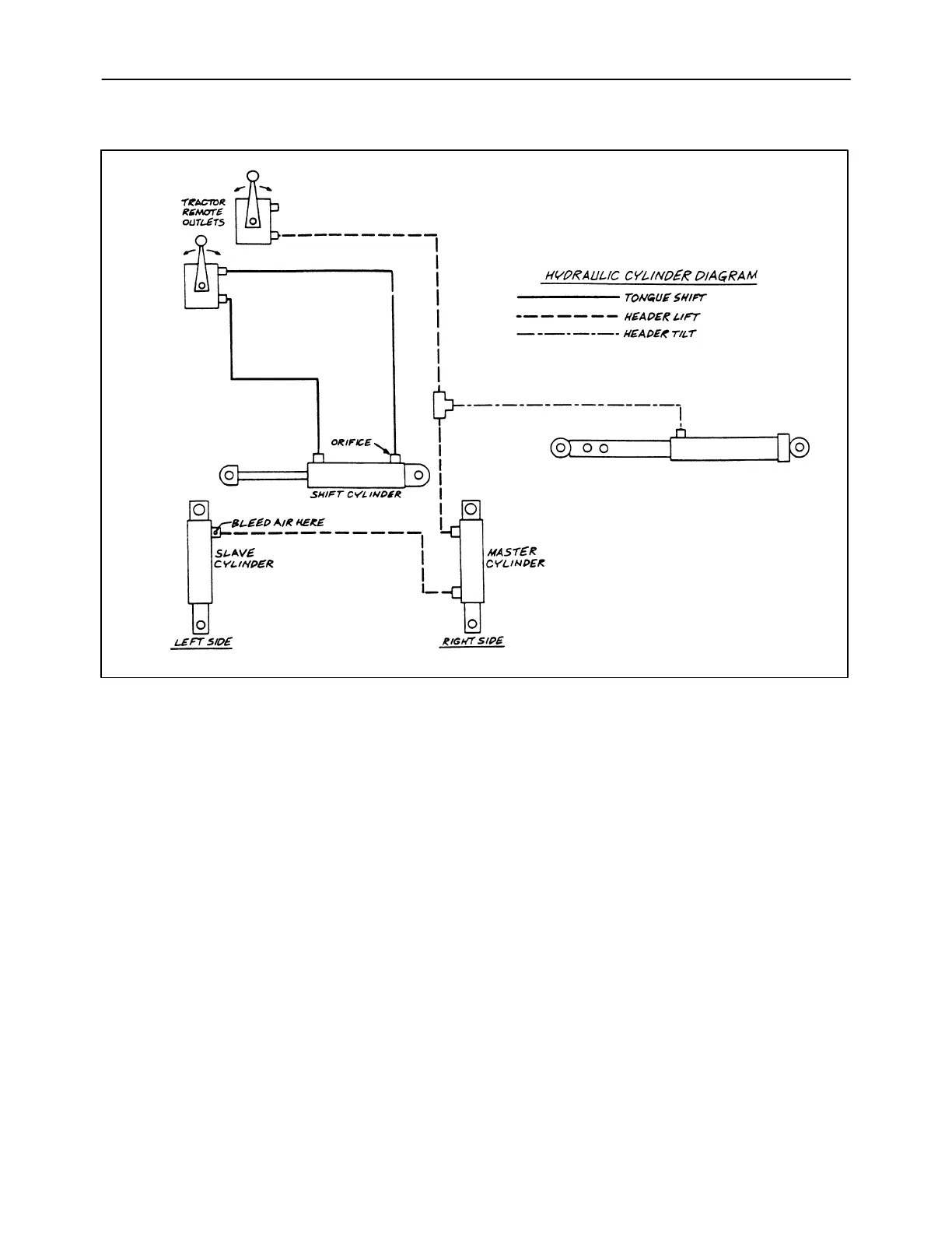
SECTION 35 - HYDRAULIC SYSTEMS - CHAPTER 1
35-3
HYDRAULIC DIAGRAM
0.0785
1431-8-8
TILT CYLINDER
4

Table of Contents

Related product manuals