EasyManua.ls Logo

Europlex 3GS - Access System Overview

Default Icon
386 pages
Print Icon
To Next Page IconTo Next Page
To Next Page IconTo Next Page
To Previous Page IconTo Previous Page
To Previous Page IconTo Previous Page
Loading...
3GS Technical Manual
Issue 4.5 August 2005
Programming Overview 7-5
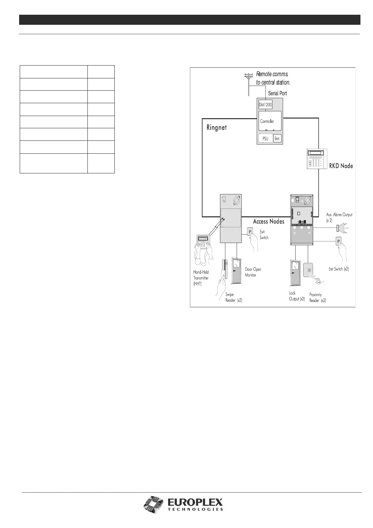
Access System Overview
The 3GS Access Control system allows the 3GS to manage a
complex card access system for your premises. The diagram
opposite shows an example of this configuration.
Doors
The 3GS Access node provides a facility for 2 or 4 doors per
node (see
3GS Hardware
for further information), to a capacity
of sixty four doors per system. Each door can be integrated to
the intruder system by assigning zone types and attributes. The
door can be used in conjunction with cards to set/arm and
unset/disarm the system. These doors are monitored for forced
and left open conditions and outputs can be tripped for these
events. Doors can be set up for free access or card access, or
can be timed or permanently opened/locked.
Door Groups
Doors are grouped to provide different levels of access.
Cards
The 3GS Access system has a capacity for 10,000 cards. Each
card must be passed on the system for an access level, which is
a combination of door groups and time zones. Cards may be
configured as temporary cards (visitor level), which makes the
card valid on the system between specified times.
For integration of cards onto the intruder system, function
levels can be assigned to the card, which allow setting/arming
and unsetting/disarming the system at particular doors.
Time Zones
A time zone is a set of on/off times for a selection of days in the
week. They can be applied to doors for timed opening or
locking and to cards to permit access to a group of doors for a
time zone via access levels. Time zones may be configured for
extra security features, such as PIN codes
Access Log
The Access control log provides a record of all access control
events ( access granted, access denied, timed open, manual
door control, etc.). These events are all date and time stamped
and may be viewed or printed.
PIN pad only operation
This option is only available on Access Control node software,
rev. 1.06 or later. This allows the cardholder to gain access
using just the card's PIN code. However, if two cardholders'
PIN codes match, the system will use the first cardholders
Cards 10,000
Doors 64
Access Levels 250
Function Levels 250
Visitor Levels 250
Door Groups 250
Time Zones 64
Access Control Log
events
3,000

Table of Contents

Other manuals for Europlex 3GS

Related product manuals