EasyManua.ls Logo

Europlex 3GS - System Configuration

Default Icon
386 pages
Print Icon
To Next Page IconTo Next Page
To Next Page IconTo Next Page
To Previous Page IconTo Previous Page
To Previous Page IconTo Previous Page
Loading...
Hardware Overview 2-4
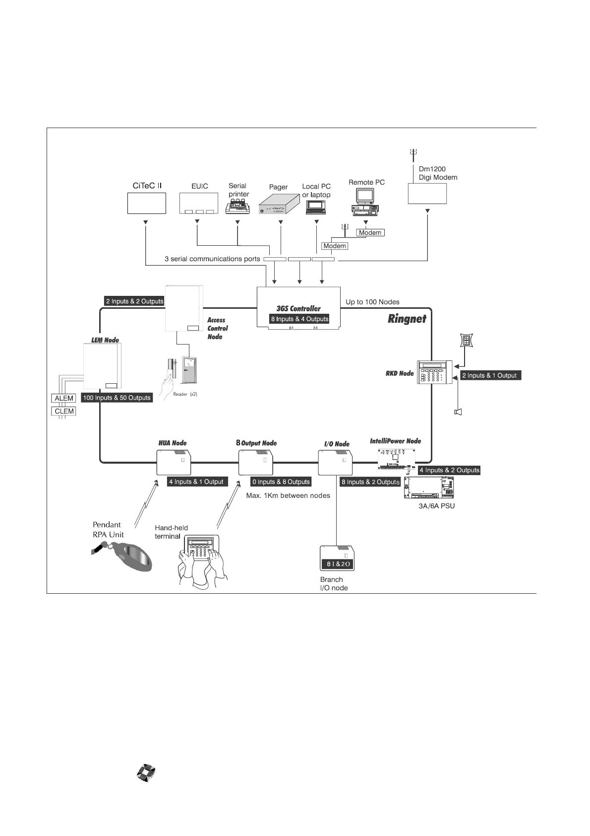
SYSTEM CONFIGURATION
The following diagram shows a typical configuration of the system.

Table of Contents

Other manuals for Europlex 3GS

Related product manuals