EasyManua.ls Logo

Hisense AHM-080HCDSAA - Correction Factor Owing to Defrosting Operation

Hisense AHM-080HCDSAA
489 pages
Print Icon
To Next Page IconTo Next Page
To Next Page IconTo Next Page
To Previous Page IconTo Previous Page
To Previous Page IconTo Previous Page
Loading...
32
Capacity and selection data
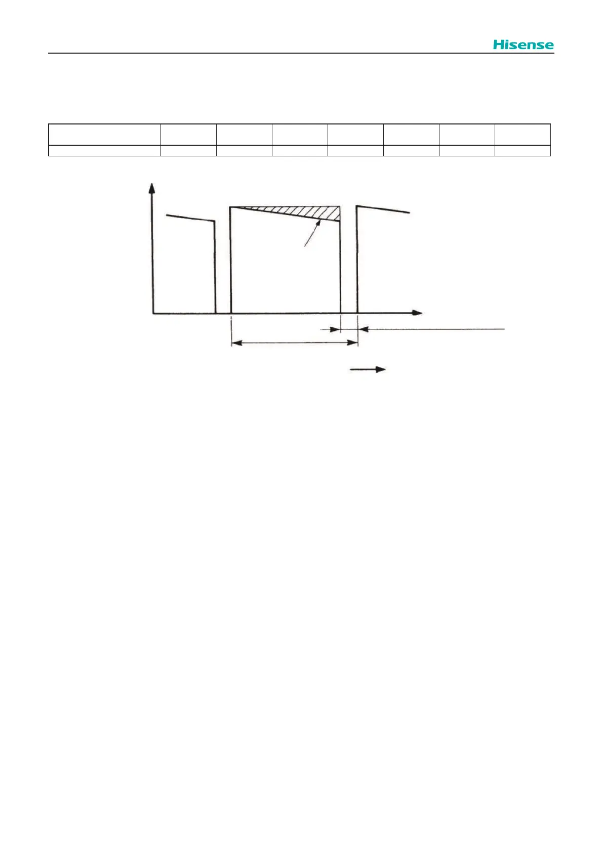
3.3.3 Correction Factor owing to defrosting operation
The heating capacity in the preceding paragraph does not include defrost operation periods.
Therefore, capacity should be corrected as follows:
Corrected Heating Capacity = Correction Factor x Heating Capacity
Outdoor Inlet Air Temp.
(°C DB) (Humidity=85% RH)
-7 -5 -3 0 3 5 7
Correction Factor 0.95 0.93 0.88 0.85 0.87 0.90 1.00
Heating
Capacity
Heating
capacity
decreases when
defrosting
1 cycle
Defrosting time (max 9 min.)
Time
NOTES:
The correction factor is not available for special conditions like snowfall or operation in a transitional period.
When the outdoor inlet air temperature is higher than 7 °C, this correction coe󰀩cient is 1.0. And when the outdoor inlet
air temperature is lower than -7 °C, this correction coe󰀩cient is 0.95.
If the outdoor inlet air temperature is not shown in the above table (for example, 1 °C), an interpolation should be carried
out using the values before and after (0 °C and 3 °C) the outdoor inlet air temperature.

Table of Contents

Other manuals for Hisense AHM-080HCDSAA

Related product manuals