EasyManua.ls Logo

Hisense AHM-080HCDSAA - Refrigerant Circuit; Refrigerant Charge; Precautions in the Event of Refrigerant Leaks; Space Heating and Dhw

Hisense AHM-080HCDSAA
489 pages
Print Icon
To Next Page IconTo Next Page
To Next Page IconTo Next Page
To Previous Page IconTo Previous Page
To Previous Page IconTo Previous Page
Loading...
170
Installation
8.4.8 REFRIGERANT CIRCUIT
8.4.8.1
REFRIGERANT CHARGE

refrigerant gas with low burning velocity (A2L class pursuant
to ISO 817), and is factory charged in the unit.
Refrigerant charge before shipment ( W0 (kg) )
Model W0 (kg)
044(2.0HP) 1.17
080(3.0HP) 1.21
8.4.8.2
PRECAUTIONS IN THE EVENT OF
REFRIGERANT LEAKS
If the refrigerant is leaked, there is a possibility of ignition if it
is in contact with an external ignition source.
Make sure that unit installation comply with applicable
legislation in each country.
The installers and those responsible for drafting the

and regulations in the case of refrigerant leakage.

and poisonous gases into the refrigerant because an explosion
can occur. It is recommended that oxygen free nitrogen be
charged for these types of tests cycle when performing a
leakage test or an airtightness test. These types of gases are
extremely dangerous.

completely
Insulate the piping completely, if not, it will cause a decrease
of performance or sweating on the surface of the pipe.

charging could cause a compressor failure.
Check for refrigerant leakage in detail. If a large refrigerant


8.4.9 SPACE HEATING AND DHW
8.4.9.1
ADDITIONAL HYDRAULIC NECESSARY
ELEMENTS

heating circuit (and DHW circuit if it were the case) with water and
checking water pressure and the total absence of any water leakage.
ACT.
ACT.
ACT.
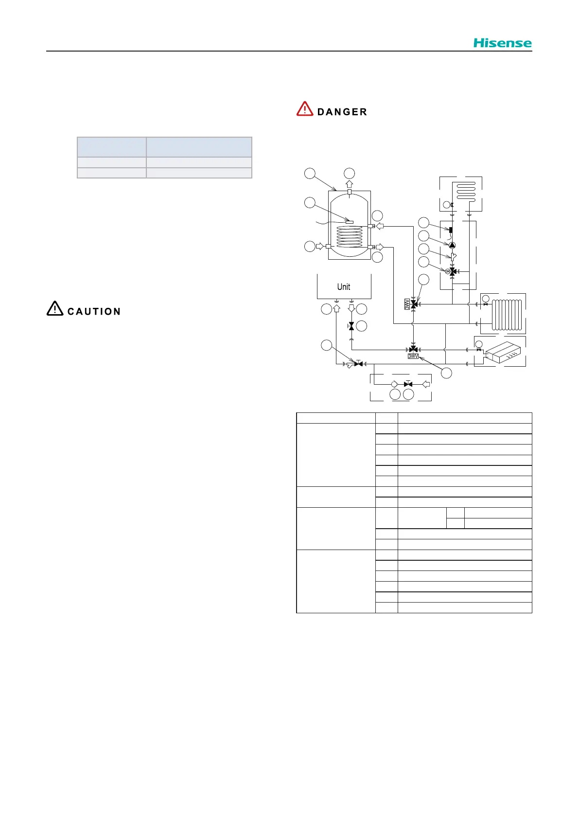
1
2
3
4
5
6
7
8
9a
14
13
12
11
10
17
9b
15
16
Floor heating
Radiator
Cooling fan coil
Nature No. Part name
Piping connections
1 Water inlet of the unit
2 Water outlet of the unit
3 DHW tank inner coil inlet
4 DHW tank inner coil outlet
5 Water inlet (DHW)
6 Water outlet (DHW)
Factory supplied
7 󰀨
8 󰀨
Optional accessories
9 3-way valve
9a 3WV Cooling
9b 3WV DHW
10 Thermistor ( for DHW)
11 Thermistor ( for Space heating)
Field supplied
12 Water pump
13 Filter
14 Mixing valve
15 Check valve
16 󰀨
17 Domestic hot water tank
As an installation example of space heating / cooling and
Domestic hot water (DHW), the following hydraulic elements
are necessary to correctly perform the space heating /
cooling and DHW water circuit:
󰀨
󰀨

inlet of the unit.

Table of Contents

Other manuals for Hisense AHM-080HCDSAA

Related product manuals