EasyManua.ls Logo

Krone Big Pack 890 - On-Board Hydraulic System for Comfort Version Electronics

Krone Big Pack 890
352 pages
Print Icon
To Next Page IconTo Next Page
To Next Page IconTo Next Page
To Previous Page IconTo Previous Page
To Previous Page IconTo Previous Page
Loading...
Appendix
344
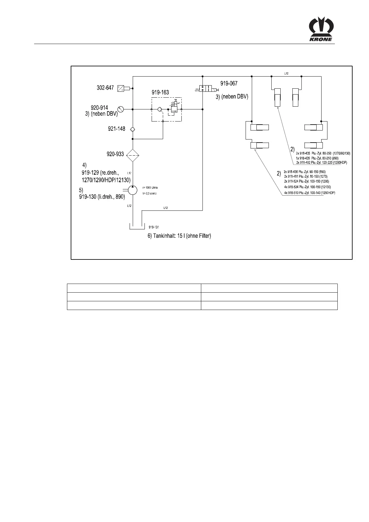
18.6 On-board hydraulic system for comfort version electronics
Fig. 244
1. in front of yoke 2. Plu.-cyl. (plunger-cylinder)
3. next to DBV (pressure limiting valve) 4. clockwise rotating
5. anticlockwise rotating 6. Tank contents: 15 l (No Filter)
Pos: 59 /BA/-----Seitenumbruch------ @ 0\mod_1196 175311226_0.doc @ 4165

Table of Contents

Other manuals for Krone Big Pack 890

Related product manuals