EasyManua.ls Logo

Scanlab RTC 5 PC Interface Board - 16.2 Layout and Interfaces; 16.2.1 Connectors and Jumper Positions

Scanlab RTC 5 PC Interface Board
622 pages
Print Icon
To Next Page IconTo Next Page
To Next Page IconTo Next Page
To Previous Page IconTo Previous Page
To Previous Page IconTo Previous Page
Loading...
RTC
®
5 PC Interface Board
Rev. 1.9 e
16 Appendix B: The RTC
®
5-Express Board
593
innovators for industry
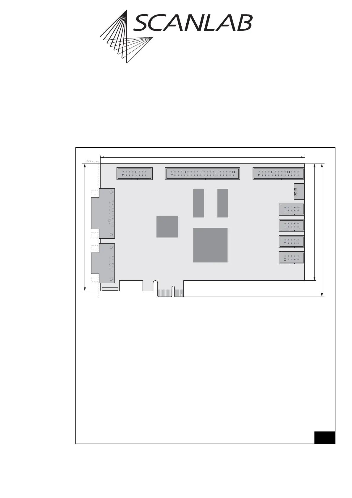
16.2 Layout and Interfaces
16.2.1 Connectors and Jumper Posi-
tions
Figure 68 and figure 69 on page 594 show the posi-
tions of the connectors and jumpers on the front and
back side of the RTC
®
5-Express board.
Relating the connectors and jumper settings, the
RTC
®
5-Express board differs from the
RTC
®
5 PC interface board only in its interface to the
PC and in its configuration of the “SPI / I2C
connector. These two deviations from the
RTC
®
5 PC interface board are described in the
following sections.
Legend
SCAN HEAD . . . . . . . . . . . . Primary scan head connector (D-SUB 9-pin female, pin-out see page 41)
LASER . . . . . . . . . . . . . . . . Laser connector and digital and analog output ports (D-SUB 15-pin female,
pin-out see page 46)
MARKING ON THE FLY . . . . 16-pin socket connector with encoder inputs, (optionally) for Processing-on-
the-fly applications (pin-out see page 51)
EXTENSION 1 . . . . . . . . . . . 40-pin socket connector with a 16-bit digital input and a 16-bit digital output
(pin-out see page 49)
EXTENSION 2 . . . . . . . . . . . 26-pin socket connector with an 8-bit digital output port, e.g. for alternative
laser control (pin-out see page 50)
SLAVE . . . . . . . . . . . . . . . . 6-pin SLAVE connector (see "Master/Slave Synchronization", page 40)
2. SCAN HEAD . . . . . . . . . . 10-pin socket connector for secondary scan head control (optionally acti-
vated, pin-out see page 41)
STEPPER MOTOR . . . . . . . . 10-pin socket connector for stepper motor control (pin-out see page 53)
RS232 . . . . . . . . . . . . . . . . 10-pin socket connector for controlling external devices via RS232 interface
(pin-out see page 51)
SPI / I2C . . . . . . . . . . . . . . . 10-pin socket connector (serial extension interface, pin-out see page 595)
ID. . . . . . . . . . . . . . . . . . . . ID number
PCIe-x1Connector . . . . . . . Interface to PC (see page 594)
68
9
6
51
J11
1
J10
15
8
9
115
216
J6
1
2
39
40
J5 J4
2
25
26
1
J3
1
J7
102
9
1
J12
102
9
1
J9
102
9
1
J8
102
9
1
2. SCAN HEAD
STEPPER MOTOR
RS232
SPI / I2C
LASER
SCANHEAD
MARKING ON THE FLY
EXTENSION 1
EXTENSION 2
SLAVE
104.5 mm
160 mm
ID
91.75 mm
100 mm
PCIe-x1 Connector
Layout of the RTC
®
5-Express board (front side)

Table of Contents

Related product manuals