EasyManua.ls Logo

Yamaha F115A - Measuring the Lighting Coil Output Peak Voltage; Measuring the Rectifier;Regulator Output Peak Voltage

Yamaha F115A
709 pages
Print Icon
To Next Page IconTo Next Page
To Next Page IconTo Next Page
To Previous Page IconTo Previous Page
To Previous Page IconTo Previous Page
Loading...
8-32
–+
ELEC
E
CHARGING SYSTEM
CHECKING THE FUSES 8
Refer to “CHECKING THE FUSES” on
page 8-11.
CHECKING THE BATTERY 8
Refer to “CHECKING THE BATTERY”
on page 3-21.
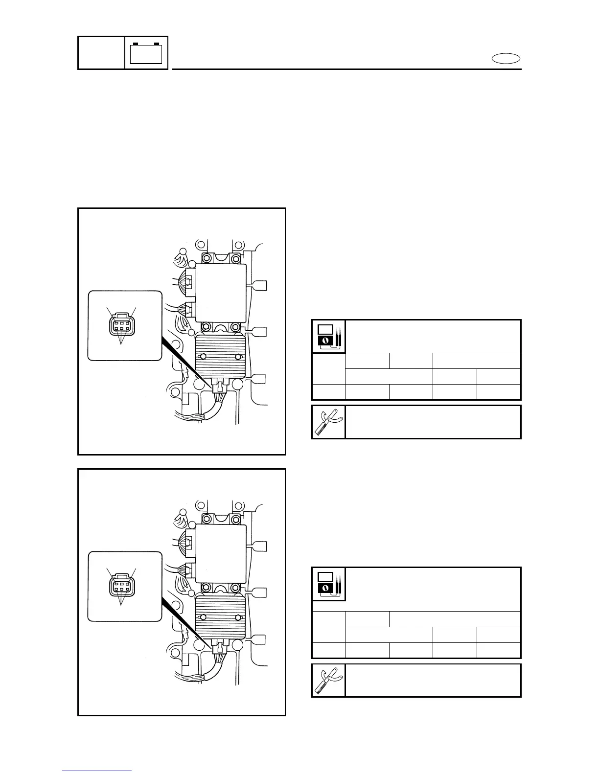
MEASURING THE LIGHTING COIL
OUTPUT PEAK VOLTAGE
8
Measure:
Lighting coil output peak voltage
Measure with the rectifier/regulator
output wire (red) disconnected.
Below specification Replace the
lighting coil.
Lighting coil output peak voltage
White (W) – White (W)
r/min
Circuit Loaded Circuit
Cranking 1,500 3,500
V 9.3 7.4 37 89
Test harness (6-pin)
90890-06790
8200
W
B
R
MEASURING THE RECTIFIER/
REGULATOR OUTPUT PEAK
VOLTAGE
8
Measure:
Rectifier/regulator output peak voltage
Below specification Replace the
rectifier/regulator.
Rectifier/regulator output peak
voltage
Red (R) – Black (B)
r/min
Circuit Loaded
Cranking 1,500 3,500
V 12.5 13.0
Test harness (6-pin)
90890-06790
8200
W
B
R

Table of Contents

Other manuals for Yamaha F115A

Related product manuals