EasyManua.ls Logo

Emerson PACSystems RSTi-EP - Leds

Emerson PACSystems RSTi-EP
539 pages
To Next Page IconTo Next Page
To Next Page IconTo Next Page
To Previous Page IconTo Previous Page
To Previous Page IconTo Previous Page
Loading...
User Manual Section 4
GFK-2958L May 2021
Detailed Descriptions of the Fieldbus Network Adapters 116
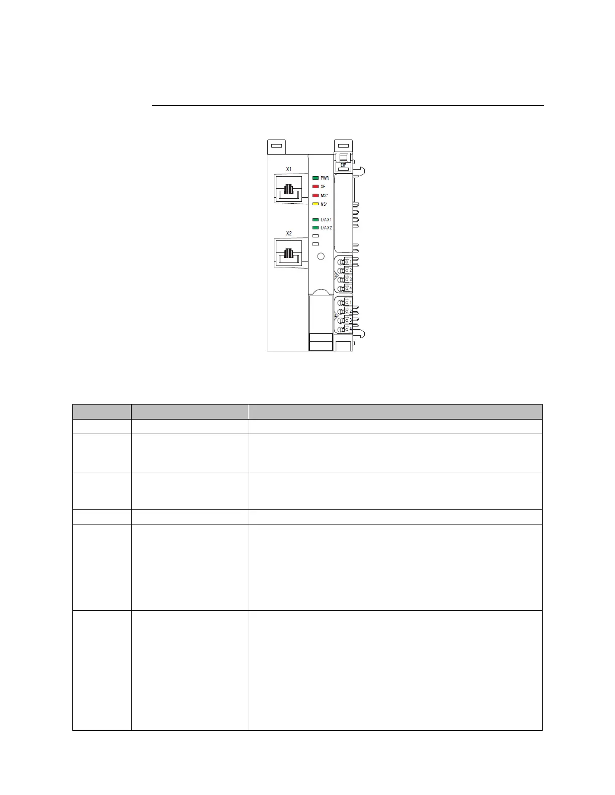
4.5.1 LEDs
Figure 46: LED Status Indicators EPXEIP001
LED Status Indicators
LED
Indication
LED State/Description
PWR
Power LED
Green: Supply voltage connected
SF
System Fault
Red: Configuration error, or error in the network adapter, or error in a
module, or there is a new diagnostic report
Red flashing: Station in Force mode
BF
Bus fault
Red: No connection to the fieldbus
Red flashing: Configuration error, no connection to the control unit, or
error in the parameter set
MT
Maintenance Required
Yellow: Error on the system bus or fieldbus
MS
Module Status
Red: More than one module does not fit the start-up configuration (or no
fieldbus connection)
Red flashing: One module does not fit the start-up configuration or there
is a diagnostic report on at least one module
Green: Ready for operation
Green flashing: Network Adapter not configured
Red/Green flashing: LED Self-test during Start
NS
Network Status
Red: IP-Address conflict
Red flashing: Timeout of the exclusive owner connection
Green: At least one EtherNet/IP connection is established
Green flashing: No EtherNet/IP connection is established
Red/Green flashing: LED Self-test during Start
Off: At least one EtherNet/IP connection is established
Yellow: Address conflict or no IP address configured
Yellow flashing (1 Hz): valid IP address but no Ether-Net/IP connection
established
Yellow flashing (4 Hz): Connection timeout on and exclusive owner

Table of Contents

Other manuals for Emerson PACSystems RSTi-EP

Related product manuals