EasyManua.ls Logo

Emerson PACSystems RSTi-EP - Connection Diagrams

Emerson PACSystems RSTi-EP
539 pages
To Next Page IconTo Next Page
To Next Page IconTo Next Page
To Previous Page IconTo Previous Page
To Previous Page IconTo Previous Page
Loading...
User Manual Section 4
GFK-2958L May 2021
Detailed Descriptions of the Fieldbus Network Adapters 70
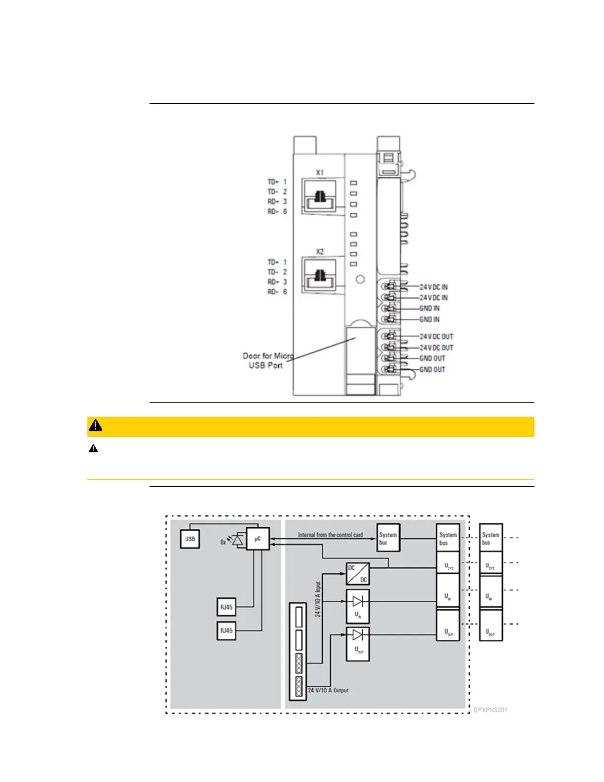
4.2.2 Connection Diagrams
Figure 25: Connection Diagram EXPNS001/EXPNS101
CAUTION
In case of a maximum power supply of >8 A and a maximum temperature of > +55°C (131 °F), all four
contacts must be connected with 1.5 mm² wiring.
Figure 26: Block Diagram EPXPN Specifications: EPXPNS001/ EPXPNS101

Table of Contents

Other manuals for Emerson PACSystems RSTi-EP

Related product manuals