EasyManua.ls Logo

Emerson PACSystems RSTi-EP - Potential Ratios; Basic Aspects; Potential-Free Design

Emerson PACSystems RSTi-EP
539 pages
To Next Page IconTo Next Page
To Next Page IconTo Next Page
To Previous Page IconTo Previous Page
To Previous Page IconTo Previous Page
Loading...
User Manual Section 7
GFK-2958L May 2021
Earthing and shielding 420
Figure 253: Shielding using Gas Discharge Tubes
7.2 Potential Ratios
7.2.1 Basic Aspects
Concerning the potential ratios of a RSTi-EP system, the following aspects must be kept in
mind:
The power supply of the network adapter and I/O modules as well as field power is
provided via the power supply at the power-feed module (PF)
A potential-free design is made possible using an isolated power supply at the system
power supply and the field power supply
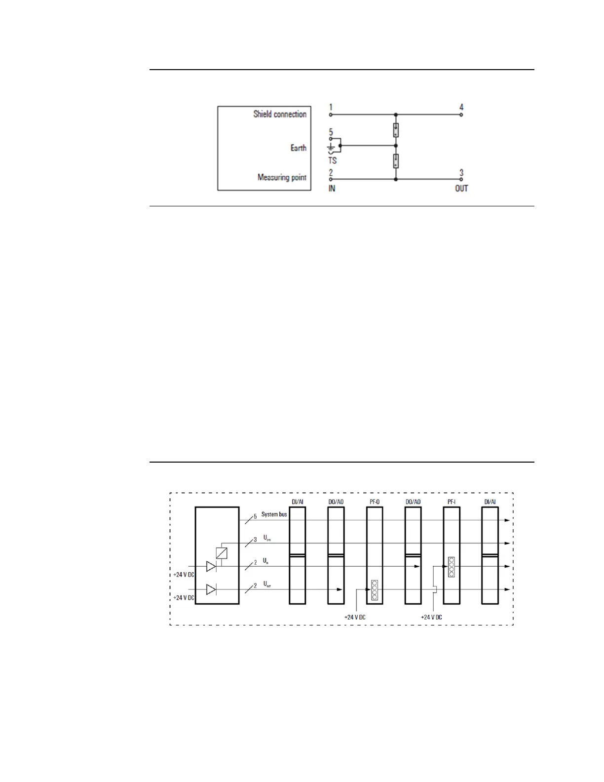
The block diagram shows the typical design of a RSTi-EP system. The power supply concept
here makes sure that, starting with a certain capacity utilization, power refresh is
implemented using power-feed modules.
Figure 254: RSTi-EP Power Supply Concept
7.2.2 Potential-Free Design
In a potential-free design, the reference potentials of control and load circuits are
galvanically isolated from each other. A potential-free design is necessary for the following:
Use of the power-feed module (EP-19xx), i.e. in all AC load circuits

Table of Contents

Other manuals for Emerson PACSystems RSTi-EP

Related product manuals