EasyManua.ls Logo

Emerson PACSystems RSTi-EP - Specifications EP-7641

Emerson PACSystems RSTi-EP
539 pages
To Next Page IconTo Next Page
To Next Page IconTo Next Page
To Previous Page IconTo Previous Page
To Previous Page IconTo Previous Page
Loading...
User Manual Section 5
GFK-2958L May 2021
Detailed Description of I/O Modules 389
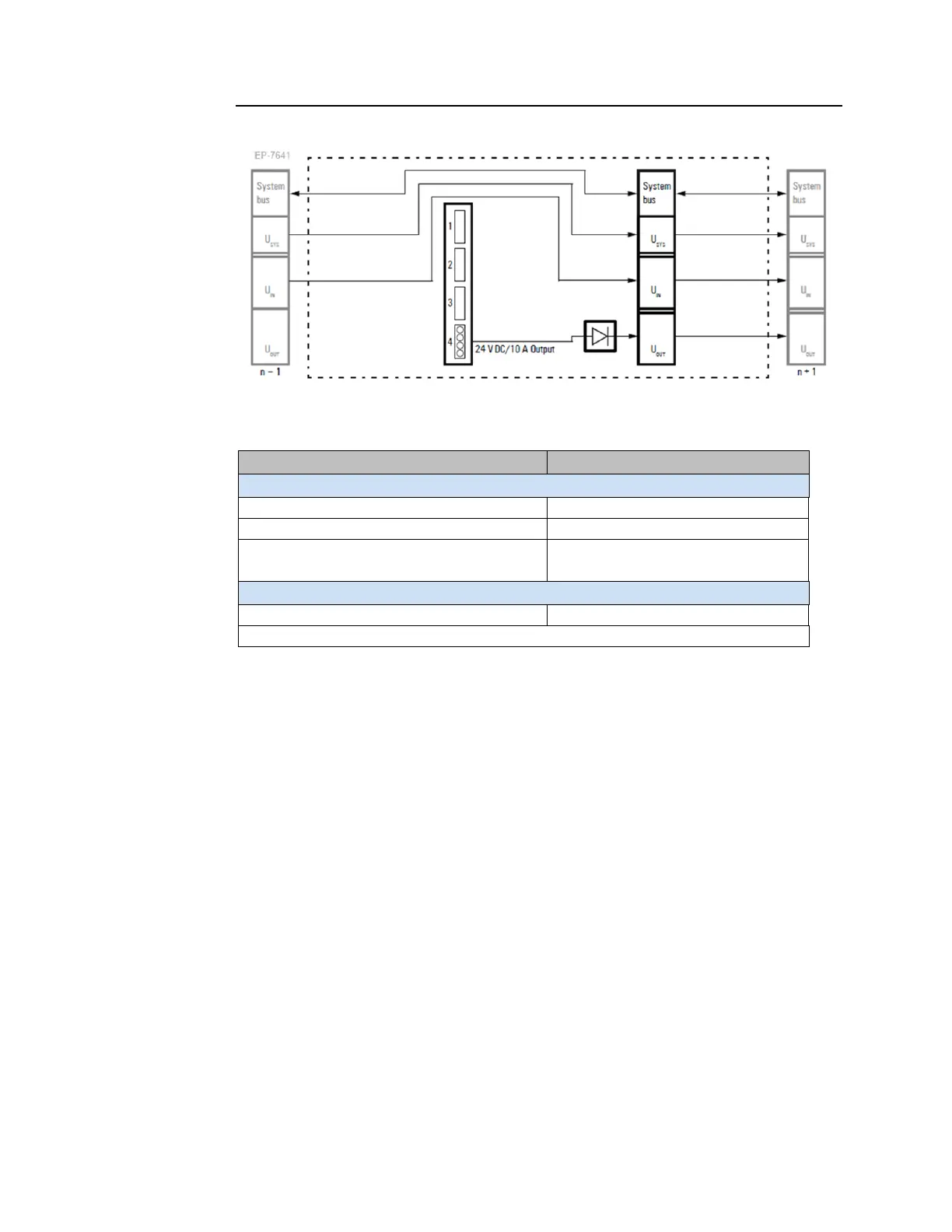
Figure 214: Block Diagram EP-7641
5.36.2 Specifications EP-7641
Specifications
Description
Supply
Supply voltage
20.4V 28.8V
Maximum feed current for input modules
10 A
Current consumption from output current path
IOUT
10 mA
General data
Weight
76 g (2.68 oz)
General data: refer to Section, General Technical Data for the Fieldbus Network Adapter

Table of Contents

Other manuals for Emerson PACSystems RSTi-EP

Related product manuals