EasyManua.ls Logo

MR TAPCON - Ambient Conditions

MR TAPCON
334 pages
Print Icon
To Next Page IconTo Next Page
To Next Page IconTo Next Page
To Previous Page IconTo Previous Page
To Previous Page IconTo Previous Page
Loading...
15 Technical data
Maschinenfabrik Reinhausen GmbH 2020 3233587317/21 EN TAPCON
®
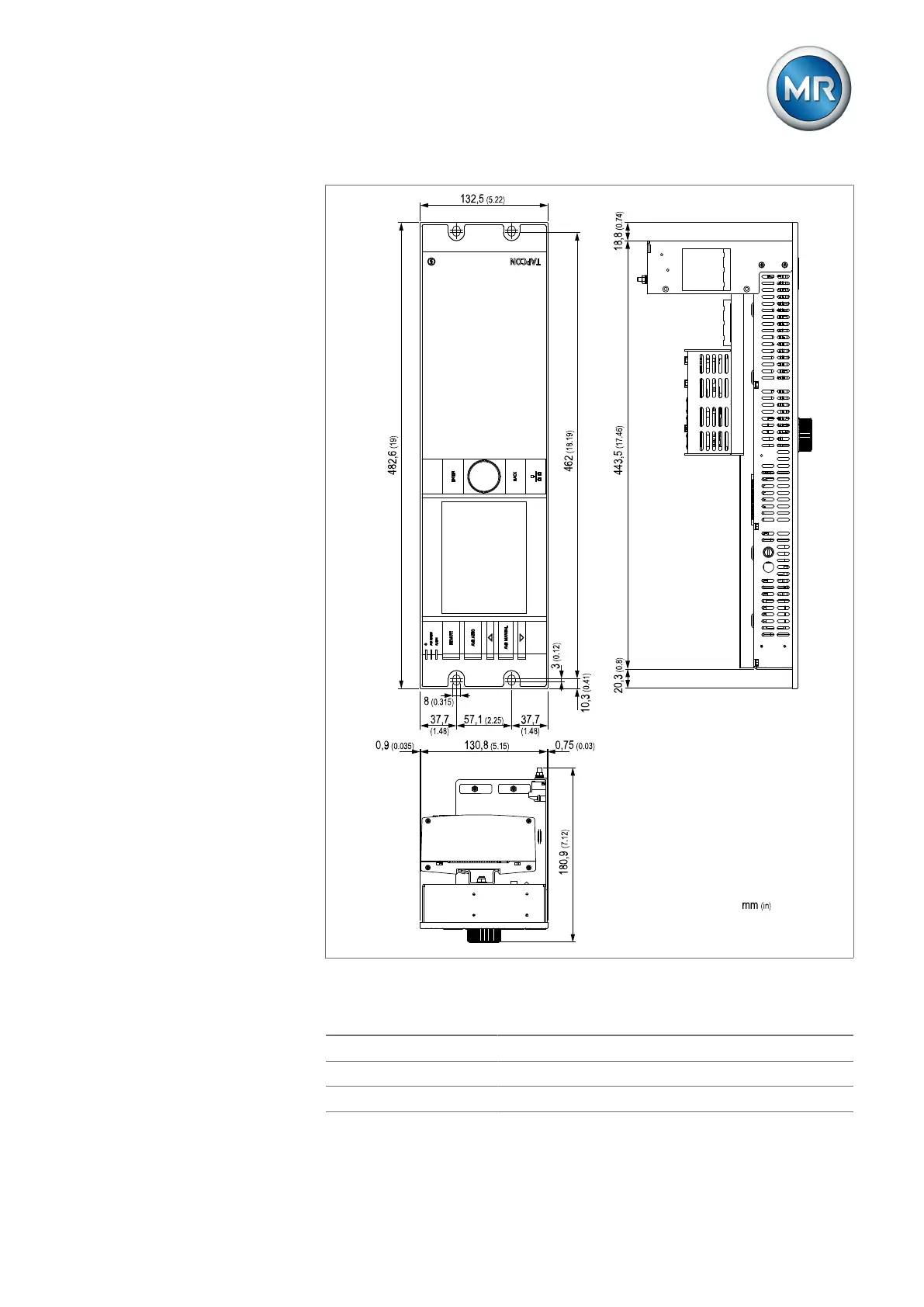
Figure222: Dimensions
15.9 Ambient conditions
Operating temperature -25...+70°C
Storage temperature -40...+85°C
Relative humidity 10...95% non-condensing

Table of Contents

Related product manuals