EasyManua.ls Logo

Panasonic FP0R - Installation Using the Optional Mounting Plate; When Using the Slim Type FP0 Mounting Plate (AFP0803)

Panasonic FP0R
348 pages
Print Icon
To Next Page IconTo Next Page
To Next Page IconTo Next Page
To Previous Page IconTo Previous Page
To Previous Page IconTo Previous Page
Loading...
5-4
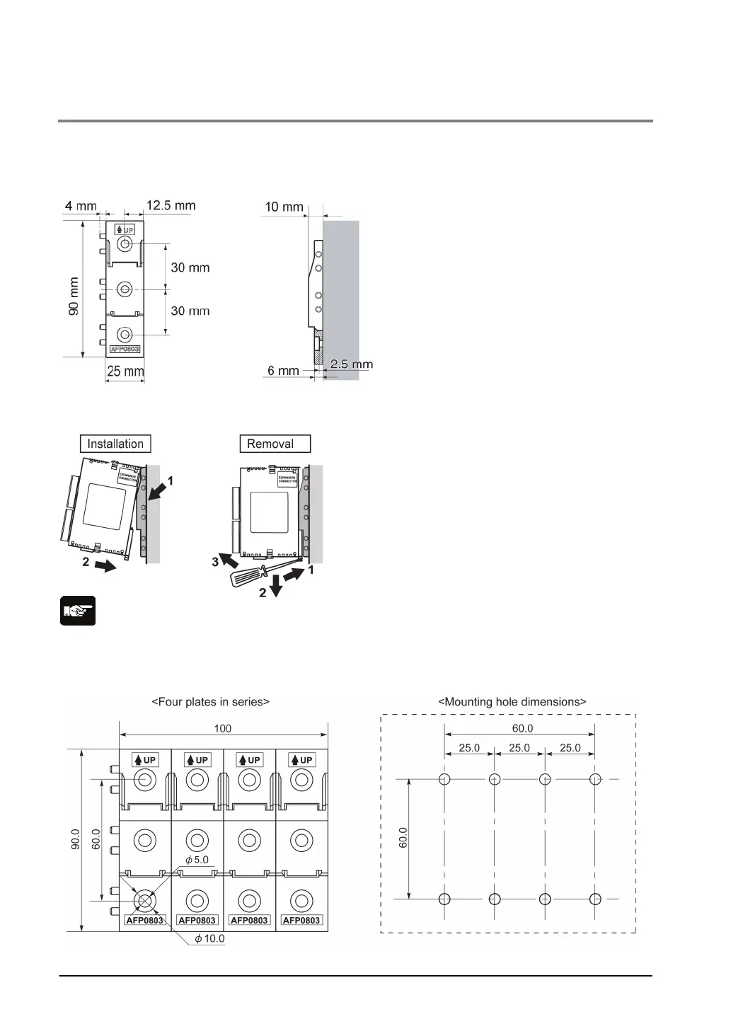
5.1.3 Installation Using the Optional Mounting Plate
When using the slim type FP0 mounting plate (AFP0803)
Use M4 size pan-head screws for attachment of the mounting plate and install according to the
dimensions shown below.
The rest of the procedure is the same as that for attaching the unit to the DIN rails.
Note:
When using an expansion unit, tighten the screws after joining all of the mounting plate to be connected.
Tighten the screws at each of the four corners.
[Example] When using the maximum numbers of the expansion units (with AFP0803)

Table of Contents

Related product manuals