EasyManua.ls Logo

Wittenborg FB 5100 - Page 201

Wittenborg FB 5100
366 pages
Print Icon
To Next Page IconTo Next Page
To Next Page IconTo Next Page
To Previous Page IconTo Previous Page
To Previous Page IconTo Previous Page
Loading...
29
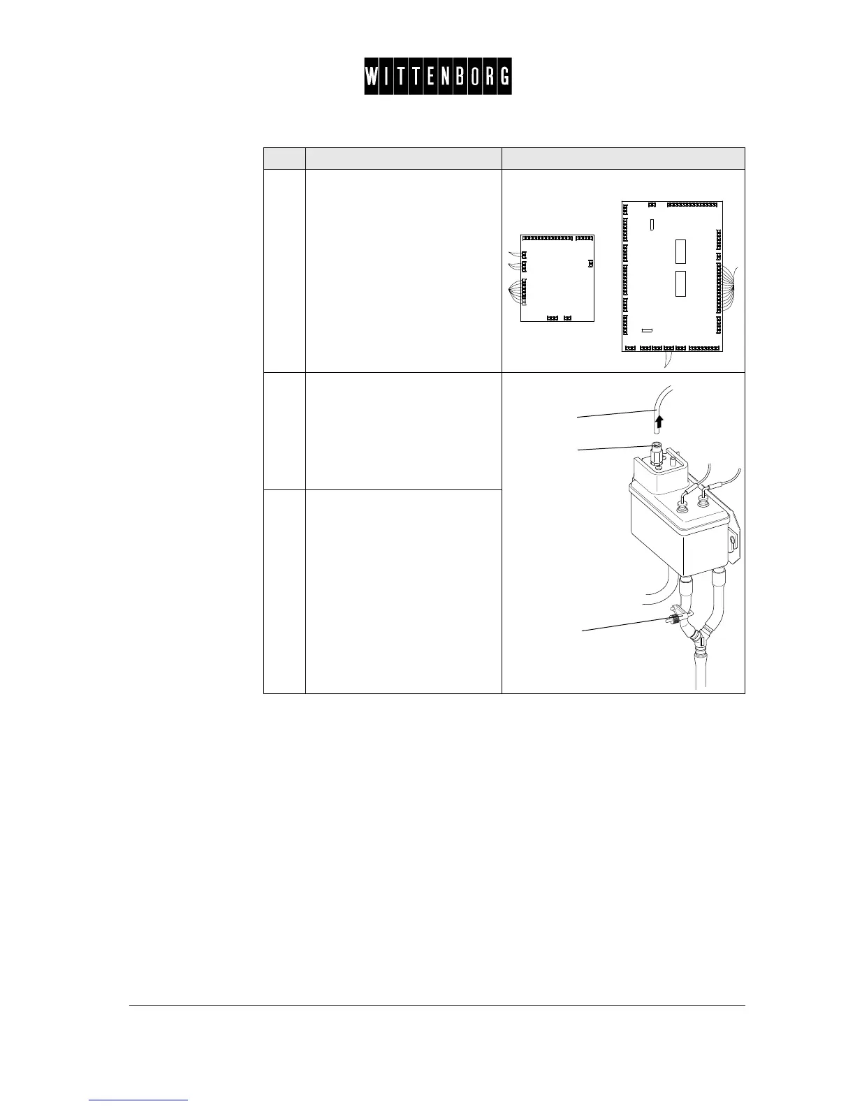
5.
Disconnect cable connections
(as shown on illustration) from
the vending machine control-
lers.
Reference: “Vending machine
controllers and electronic box”.
6.
Remove water inlet hose (1)
Press the hose (1) down-
wards with one hand, then
press the ring (2) downwards
with the other hand and hold
it there, while pulling the
hose upwards.
7.
Empty the break tank by loosen-
ing the hose clamp (3).
Step Action Illustration
PUMP
VENDING MACHINE
CONTROLLER
ES VALVE
FAN
FLOWMETER
GRINDER
BREWER
WATER SYSTEM
FB/IN/ESES
1
3
2

Table of Contents

Related product manuals