EasyManua.ls Logo

Brunswick Sync - Page 170

Brunswick Sync
278 pages
Print Icon
To Next Page IconTo Next Page
To Next Page IconTo Next Page
To Previous Page IconTo Previous Page
To Previous Page IconTo Previous Page
Loading...
44
Sync Camera Assembly
A
M
F
MANAGER CONTROL UNIT
SER. NO.
MFG. DATE
VOLTSAMPS
ABCDOUT IN
CONTROL
CYCLE
SWEEP TABLE
PROG
ZERO
ODD
SWEEP
REV
CYCLE
SWEEP TABLE
PROG
ZERO
EVEN
SWEEP
REV
AMF
BALL DET. FRONT END
BLK
RED
BLK
RED
(15)
AMF 8290XL
EVEN LANE
(14)
AMF 8290XL
ODD LANE
(5)
PINSETTER
CHASSIS
(5)
PINSETTER
CHASSIS
(2)
AMF DH485 CABLE
DAISY CHAIN TO
EACH PINSETTER
(8)
AMF
FRONT END BOX
(7)
AMF CABLE
REMOVE FROM
FRONT END
POSITION AT
FRONT END BOX
(25)
57-500212-000
57-500841-000
(1)
MANAGER
CONTROL UNIT
(4)
MCU SOURCE
COMMAND INTERFACE
(9) DISTRIBUTION BOARD
(3)
BUTT
SPLICES
DH485
DH485
57-500211-000
(13)
AMF SWEEP
SWITCH
57-861824-000
O
D
D
E
V
E
N
(12)
APS ADAPTER
BOX
(6)
CAM/SCOR
(10)
57-500397-000
AMF 8290XL EVEN LANE
SHORT CYCLE CABLE
(11)
57-500396-000
AMF 8290XL ODD LANE
SHORT CYCLE CABLE
(16)
9-PIN AMF STRAIGHT THRU
CABLE PINNED ONE TO ONE
(13)
AMF SWEEP
SWITCH
57-861824-000
(18)
RIGHT BALL
DETECTOR
(17)
LEFT BALL
DETECTOR
(19)
BALL DETECT
CABLE
(57-500220-000)
J32
(20)
VIDEO CABLE
(57-500050-000)
J2
(21)
CAMERA
6
9
5
1
J1
J3
R_BUMPER_L
PWR/RES_LEFT
PWR/RES_RIGHT
SW1
8765
OPEN
SW2
4
321
SWP/THR_RT
K1
RESET
APS_LEFT
BOARD_ADR1
FOUL_IN
K3
K4
K2
44/NPS_LEFT
44/NPS_RIGHT
APS_RIGHT
RS232
J6
RS232_L&R
4318765
BOARD_ADR2
OPEN
SW3
2
J31
J7
J27
J33
J34
J35
J26
BUMPER
CAMERA
KEYPAD
GS PINSETTER
2X 2.0AMP, 250V
SLOW BLOW FUSES
ETHERNET
J2
J36
J37
J24
J22
(23)
PERIPHERAL CONTROLLER
(BACK VIEW)
(22)
CAMERA
ADAPTER
PCB
SWP/THR_LT
BALL_RT
BALL_LT
J25
J23
(24)
57-500281-000
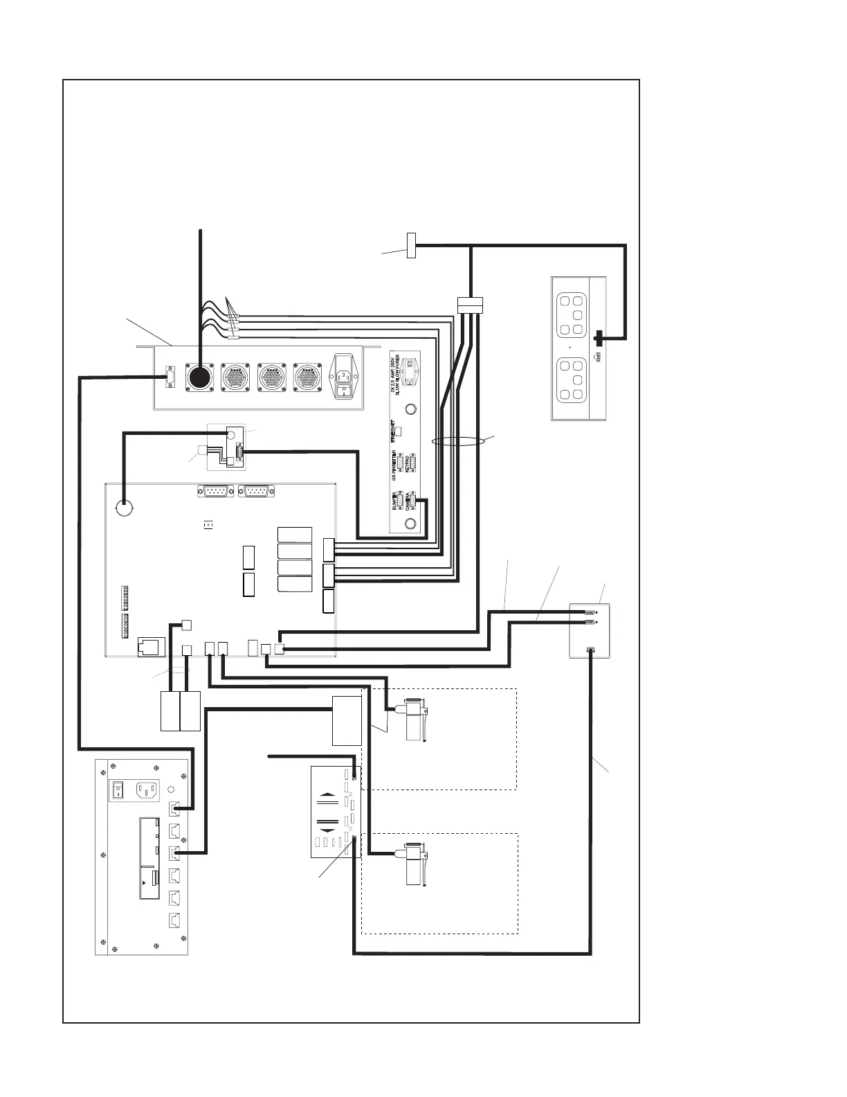
AMF 8290XL Interface Overview
(1) MANAGER CONTROL UNIT (2) CAM/SCOR (3) BUTT SPLICES (4) MCU SOURCE COMMAND INTERFACE
(5) PINSETTER CHASSIS (6) AMF DH485 CABLE DAISY CHAIN TO (7) AMF CABLE REMOVE FROM “FRONT (8) AMF FRONT END BOX
EACH PINSETTER END” POSITION AT FRONT END BOX
(9) DISTRIBUTION BOARD (10) 57-500397-000 AMF 8290XL EVEN (11) 57-500396-000 AMF 8290XL ODD (12) APS ADAPTER BOX
LANE SHORT CYCLE CABLE LANE SHORT CYCLE CABLE
(13) AMF SWITCH 57-861824-000 (14) AMF 8290XL ODD LANE (15) AMF 8290XL EVEN LANE (16) 9-PIN AMF STRAIGHT THRU CABLE PINNED ONE
TO ONE
(17) LEFT BALL DETECTOR (18) RIGHT BALL DETECTOR (19) BALL DETECT CABLE (57-500220-000) (20) VIDEO CABLE (57-500050-000)
(21) CAMERA (22) PERIPHERAL CONTROLLER (23) CAMERA ADAPTER PCB 24) 57-500281-000
25) 57-5002212-000

Table of Contents

Other manuals for Brunswick Sync

Related product manuals