EasyManua.ls Logo

Brunswick Sync - Distribution Board 7; Connections and Components

Brunswick Sync
278 pages
Print Icon
To Next Page IconTo Next Page
To Next Page IconTo Next Page
To Previous Page IconTo Previous Page
To Previous Page IconTo Previous Page
Loading...
8 Sync Scorer Components
Distribution Board 7
Connections and Components
J5
R_BUMPER_L
D3
TX4
TX5
D2
RX4
RX5
D7
D8
PWR/RES_LEFT
PWR/RES_RIGHT
J3
J17
J30
D34
BUMP_LEFT
CAM_1-3
BUMP_RIGHT
D41
SW1
J33
FOUL_RT
D75
SWP_RT
THR_RT
D84
OPEN
SW2
876
5
4
3
21
J35
D61
SWP_LT
SWP/THR_RT
SP_OUT3
D97
D98
SP_OUT4
D69
J20
J34
K1
0DEG_RT
D47
D57
JP8
SPARE OUT
FOUL_LT
J29
CAMERA_EN
JP2
PWR_DN
D95
SP_OUT1
D96
SP_OUT2
CAM_IN2
1
JP14
SPARE_IN
J28
JP9
1
JP18
WD_EN
RESET
JP11
1
A21
JP13
1
A20
JP4
1
+5V
+3.3V
BYTE
A19
+12Vdc
SP_IN1
D53
D55
SP_IN3
D33
RST_LEFT
+12V
D100
D54
SP_IN2
SP_IN4
D56
J36
APS_LEFT
D36
BEAT
BOARD_ADR1
+12Vdc
JP16
PWR_LEFT
FOUL_IN
K3
K4
LAN1 OUT
D40
RST_RT
D39
PWR_RT
SWP/THR_LT
THR_LT
D62
1
JP3
T U
D94
J13
PE4
PE5
PE3
D81
+12V +5V
1
Jp17
D50
F1
JP1
ALSB
LAN1 IN
J8
JP12
1
BOOT0
BOOT1
JP5
D32
J9
K2
D60
CAM_IN1
J12
NPS_LT
0DEG_LT
D48
1
CE2
JP15
+12Vdc
44/NPS_LEFT
44/NPS_RIGHT
SPEED
44DEG_LT
D49
44DEG_RT
D46
D58
NPS_RT
PH_LEFT
D73
PH_RIGHT
J32
D102
PH_RIGHT
PH_LEFT
J27
APS_RIGHT
D64
APS_RIGHT
J37
APS_LEFT
D59
LAN2 OUT
J16
J15
LAN2 IN
T U
JP6
1
J19
LAN3 OUT
LAN3 IN
J18
T U
1
JP7
ISP
LCD1
RS232
J6
RS232_L&R
PT1
J21
161
BOARD_ADR2
OPEN
SW3
JP10
+12Viso
J1
FS_ERR
D16
USB_PWR
D17
J31
J14
D27
TX6
D23
RX1
D22
DIR1
TX1
D24
D25
DIR6
D26
RX6
DIR3
D28
TX3
D30
RX3
D29
+12V
1
JP19
+5V
RS485
JP20
1
RS232
J7
J26
J25 J23
J24
J22
(15)
BRUNSWICK
BUMPER
COMMUNICATION
(19)
KEYPADS
(18)
PIN CAMERA
RS-232
(20)
USB
CONNECTORS
(21)
PROGRAMMING
PORTS
(25)
LCD
DISPLAY
(23)
PIN CAMERA
VIDEO
(24)
LCD
CONTRAST
CONTROL
(2)
ETHERNET
(5)
SWITCH CLUSTER /
NEW PIN SOLENOID
(3)
BALL
DETECT
(4)
SWEEP / THROW
SWITCH
(7)
AMF
SHORT CYCLE
(6)
FOUL
(11)
EVEN LANE
CONTROL
(12)
ODD LANE
CONTROL
(10)
AMF
BUMPER
CONTROL
(1)
POWER
IN
(9)
SPARE
OUTPUT
(8)
SPARE
INPUT
(22)
VIDEO
OUT
(13)
ISP
(16)
GS PINSETTER
COMMUNICATION
DEBUG
JTAG
(17)
RS-485
CONNECTORS
(14)
SPARE
RS-485
CONNECTORS
876
5
4
3
21
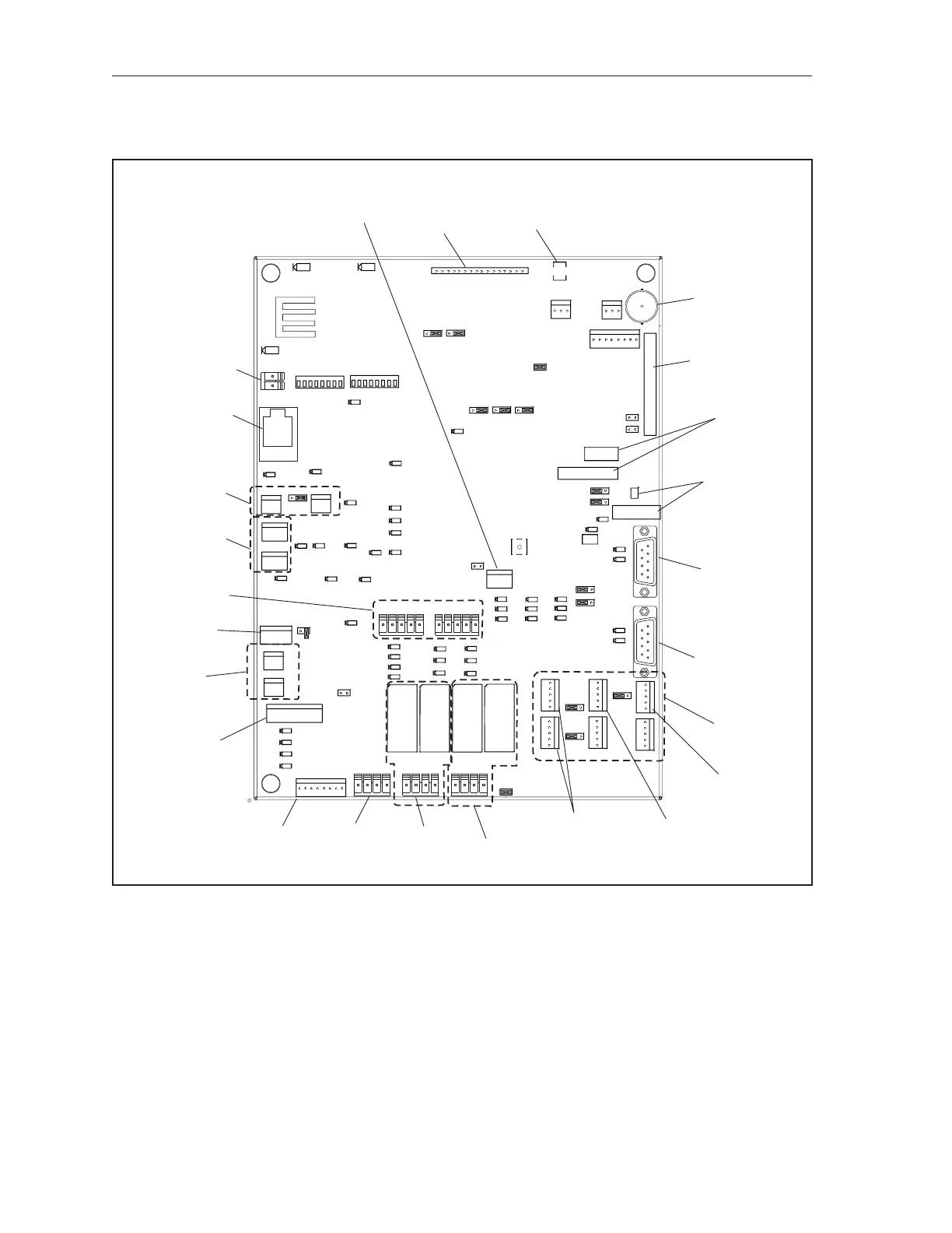
Distribution Board 7 Connectors and Components
The function of the connectors and components on the Distribution Board 7 are:
(1) Power In - (J30) Board power connector. Input for +12VDC originating at the power supply.
(2) Ethernet - (J31) Internal connection point for the Cat5e cable that attaches to the external
“Ethernet” connector located on the bottom of the Peripheral Controller. The Distribution
board communicates with the Sync control system, Display Controllers, and Sync Touchscreen
consoles through this connection.

Table of Contents

Other manuals for Brunswick Sync

Related product manuals