EasyManua.ls Logo

Siemens SIMATIC ET 200S - Electrical design of the ET 200 S

Siemens SIMATIC ET 200S
652 pages
To Next Page IconTo Next Page
To Next Page IconTo Next Page
To Previous Page IconTo Previous Page
To Previous Page IconTo Previous Page
Loading...
Wiring and Fitting
5-6
ET 200S Distributed I/O System
EWA-4NEB 780602402-12
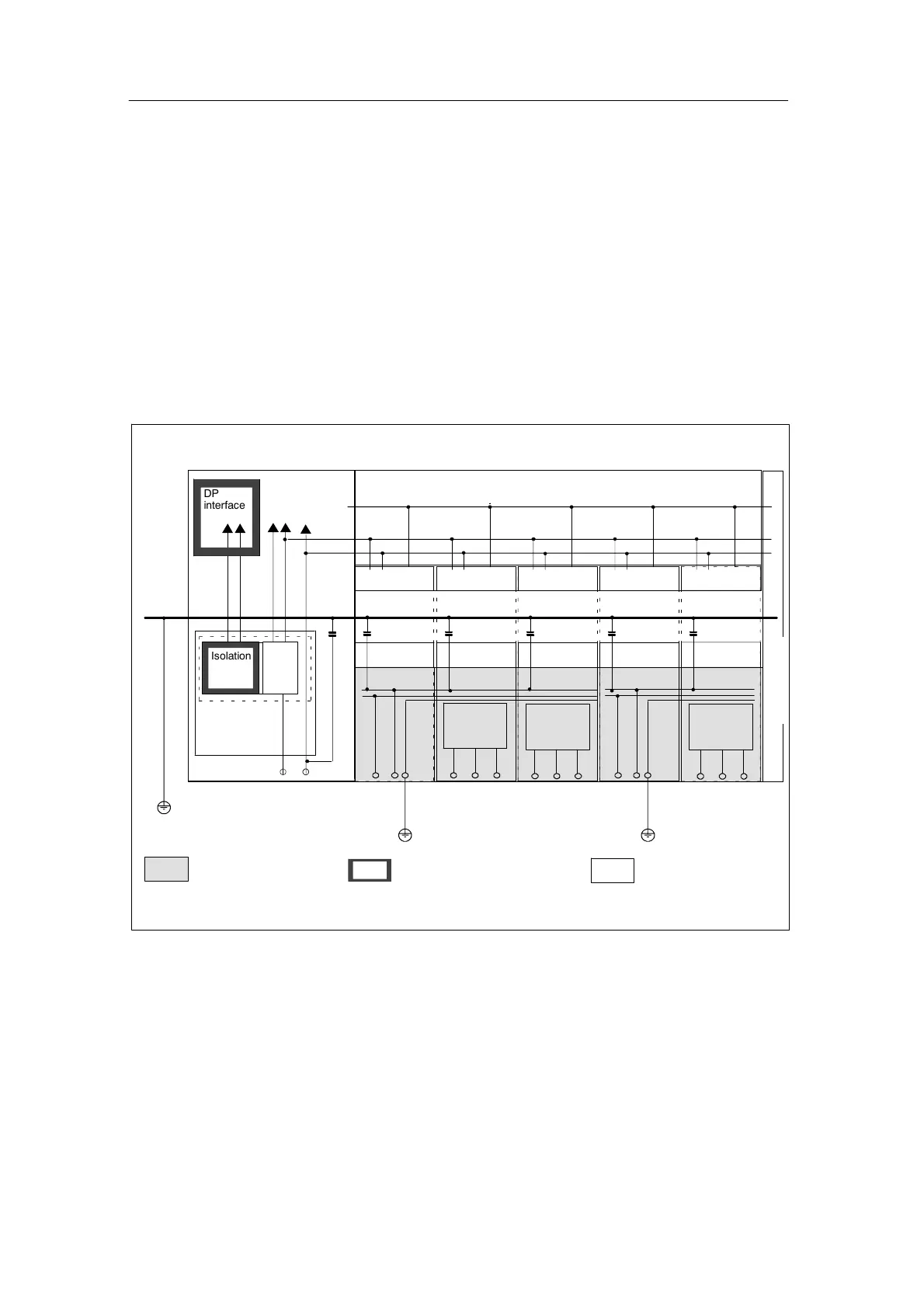
5.3 Electrical design of the ET 200S
Isolation between ...
The load circuits/process and all other circuit components of the ET 200S
The PROFIBUS DP interface in the IM151-1 interface module and all other
circuit components
The PROFIBUS DP interface in the IM151-3 PN interface module and all other
circuit components
The following figure shows the potentials of the ET 200S. Only the most important
components are shown.
1L+ 1MIM 151 24 VDC M 24 VDC M
Bus interface
Isolation
Electronics,
backplane bus
Terminating
module
Process
electronic
component
s
Process
electronic
component
s
Process
electronic
component
s
ET 200S backplane bus
Isolation Isolation Isolation Isolation
PE
Bus interface Bus interface Bus interface Bus interface
Rail
PE
Potential logic circuitry
Potential DP interface
Potential I/O
Isolation
DP
interface
Power
module
Electronic
module
Electronic
module
Power
module
Electronic
module
Figure 5-2 Potentials of the ET 200S with IM151-1

Table of Contents

Other manuals for Siemens SIMATIC ET 200S

Related product manuals