EasyManua.ls Logo

YASKAWA E1000 - Page 52

YASKAWA E1000
480 pages
Print Icon
To Next Page IconTo Next Page
To Next Page IconTo Next Page
To Previous Page IconTo Previous Page
To Previous Page IconTo Previous Page
Loading...
2.2 Mechanical Installation
52 YASKAWA ELECTRIC SIEP C710616 35D YASKAWA AC Drive E1000 Technical Manual
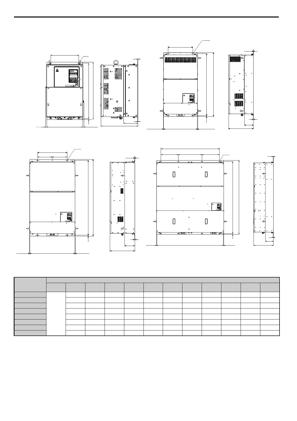
IP00 Enclosure Drives
Table 2.6 Dimensions for IP00 Enclosure: 200 V Class
Drive Model
CIMR-E2A
Dimensions (mm)
Figure W H D W1 H1 H2 D1 t1 t2 d
Weight
(kg)
0110
1
250 400 258 195 385 7.5 100 2.3 2.3 M6 21
0138 275 450 258 220 435 7.5 100 2.3 2.3 M6 25
0169 325 550 283 260 535 7.5 110 2.3 2.3 M6 37
0211 325 550 283 260 535 7.5 110 2.3 2.3 M6 38
0250 450 705 330 325 680 12.5 130 3.2 3.2 M10 76
0312 450 705 330 325 680 12.5 130 3.2 3.2 M10 80
0360 500 800 350 370 773 13 130 4.5 4.5 M12 98
0415 500 800 350 370 773 13 130 4.5 4.5 M12 99
Figure 1
W1
4-d
H1
H
H2
Max 10Max 10
W
t2
t1
D1
D
D1
D
t2
H1
H2
H
4-d
W1
W
Max 8Max 8
t1
Figure 2
YEC_common
D1
D
W
H1
H2
H
Max 6Max 6
4-d
t2
Figure 3
t1
W1
Figure 4
330 330
8-d
440
W1
H1
W
H2
D
H
D1
t2
t1
Max 6Max 6
220 220
YEC_common
SIEP_C710616_35.book 52 ペー 2015年11月30日 月曜日 午後2時2

Table of Contents

Related product manuals