EasyManua.ls Logo

Ceia THS/MS21 - Integrated Systems; THS;FBB and THS;MBB

Ceia THS/MS21
162 pages
Print Icon
To Next Page IconTo Next Page
To Next Page IconTo Next Page
To Previous Page IconTo Previous Page
To Previous Page IconTo Previous Page
Loading...
3
FI002K0018v1100UK – THS/21 Instruction manual for installation, use and maintenance
INSTALLATION
86 ORIGINAL INSTRUCTIONS
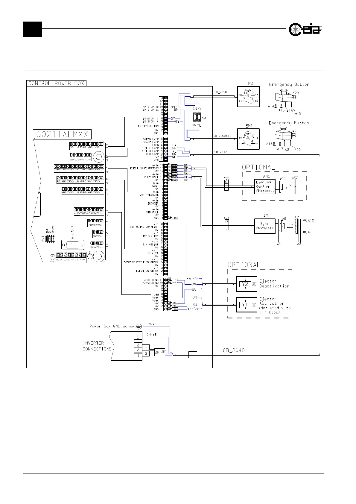
3.6.5 Integrated Systems
3.6.5.1 THS/FBB and THS/MBB

Table of Contents

Related product manuals