EasyManua.ls Logo

Sirona Intego - Page 264

Sirona Intego
326 pages
Print Icon
To Next Page IconTo Next Page
To Next Page IconTo Next Page
To Previous Page IconTo Previous Page
To Previous Page IconTo Previous Page
Loading...
64 57 498 D3543
264 D3543.201.01.05.02 08.2016
5Care, cleaning and maintenance by the practice team Sirona Dental Systems GmbH
5.5Components of the water unit Operating Instructions INTEGO
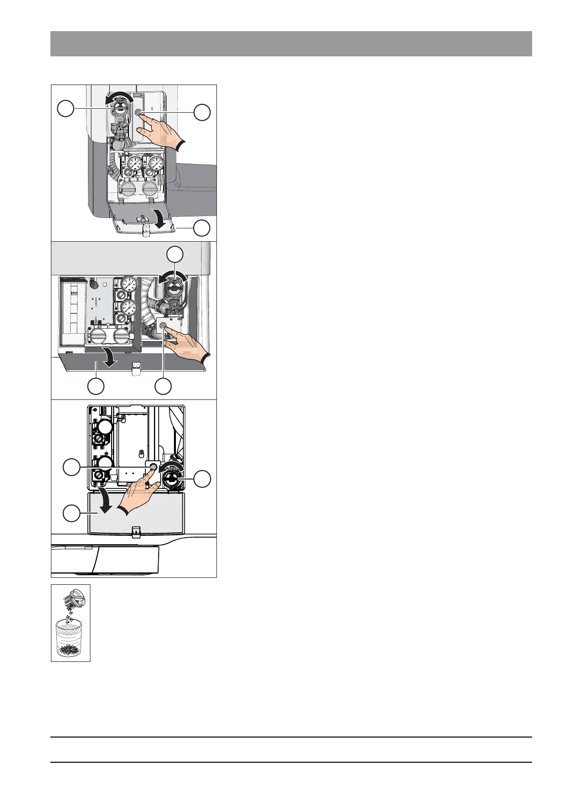
1. Open the flap A on the base of the water unit.
2. Allow the remaining water to be extracted completely. Press button B
on the standard wet suction.
A slurping noise indicates that the water unit is completely empty.
3. Loosen the bayonet catch of the filter insert C. Unscrew the filter
insert from the filter housing of the standard wet suction
counterclockwise.
4. Properly dispose of the amalgam residues together with the amalgam
residues collected from the cuspidor and from the suction hoses.
Then clean the filter insert under running water in a sink (not in the
cuspidor!).
A
B
A
B
C
C
A
B
C

Table of Contents

Other manuals for Sirona Intego

Related product manuals