EasyManua.ls Logo

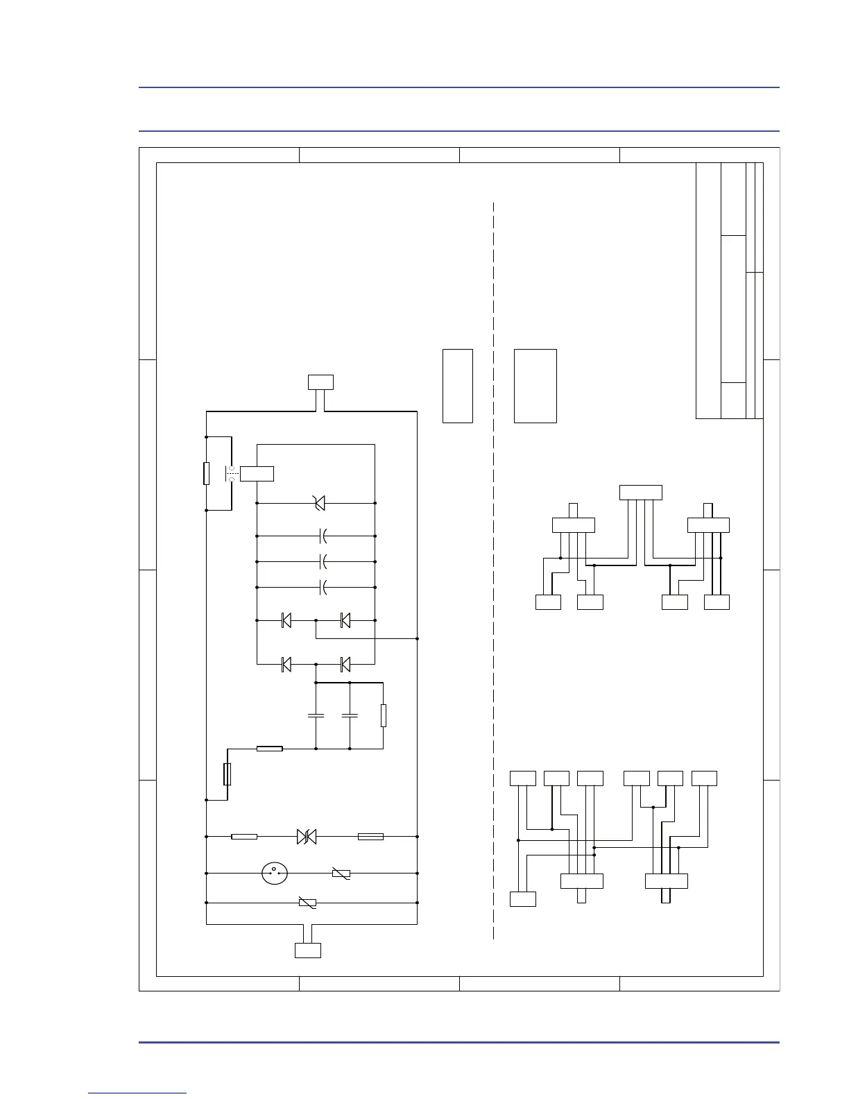
Spacelabs BleaseSirius - Schematic 30 - 13600379 SCH Transformer Interconnections & Soft-Start PCB - 230 V

Spacelabs BleaseSirius
298 pages
Print Icon
To Next Page IconTo Next Page
To Next Page IconTo Next Page
To Previous Page IconTo Previous Page
To Previous Page IconTo Previous Page
Loading...
295
Schematics
Schematic 30 - 13600379SCH Transformer Interconnections &
Soft-Start PCB - 230V
1 2 3 4
A
B
C
D
4
321
D
C
B
A
Title
Number RevisionSize
A4
Date: 24-Nov-2006 Sheet of
File: D:\Soft-start&Transformer Board\Protel\13600375-1.DdbDrawn By:
TRANSFORMER INTERCONNECTIONS & SOFT-START PCB - 230V
VIOLET
VIOLET
GREY
GREY
BLUE
BLUE
RED
RED
113600380SCH
1 1
1
2
3
4
LK4
LINKS4
1
2
3
4
LK3
LINKS3
1
2
J1
POWER IN
IN
L
N
1
2
3
4
J2
SECONDARYS OUT
OUT
ISOLATED
N
N
L
L
PART B
TRANSFORMER
SECONDARY
INTERCONNECT
R4
10R
2W
R5
1M
D1
1N4007
D2
1N4007
D3
1N4007
D4
1N4007
D5
1N5359B
24V
+
C3
470u
35V
FS1
1A-T
R1
275V
VR1
440V
R3
10R
2W
G1
470V
1
2
TB7
TRANSFORMER 1 SECONDARY
1
2
TB8
1
2
TB9
TRANSFORMER 2 SECONDARY
1
2
TB10
SEC 1
SEC 2
FS2
1A-T
C1
NOT FITTED
C2 2u2
PART A
SOFT-START
+
C4
470u
35V
+
C5
470u
35V
R2
275V
6 4
0 1
K1
G7L-1A
R6
6R8
LIVEINNEUTRAL
RELAY+
RELAY-
R4-1
FS2-2
R3-1VR1-1
G1-2
C1-2
SSLIVE
LSEC1
NSEC1
LSEC2
NSEC2
LK3-3
LK3-2
LK4-3
LK4-2
1
2
3
4
LK1
LINKS1
PINK
PINK
YELLOW
YELLOW
YELLOW
YELLOW
BLACK
BLACK
WHITE
WHITE
BROWN
BROWN
1
2
3
4
LK2
LINKS2
1
2
TB2
TRANSFORMER 1 PRIMARY
1
2
TB3
1
2
TB1
1
2
TB4
TRANSFORMER 2 PRIMARY
1
2
TB5
1
2
TB6
LK1-3
LK1-2
LK2-3
LK2-2
1
2
TB11
OUT
1
2
TB12
SOFT-START IN
TXLIVE
TXNEUTRAL
LK1-4
LK2-4
POWER FROM
SOFT-START
SOFT-START POWER
TO PART B
230V

Table of Contents