EasyManua.ls Logo

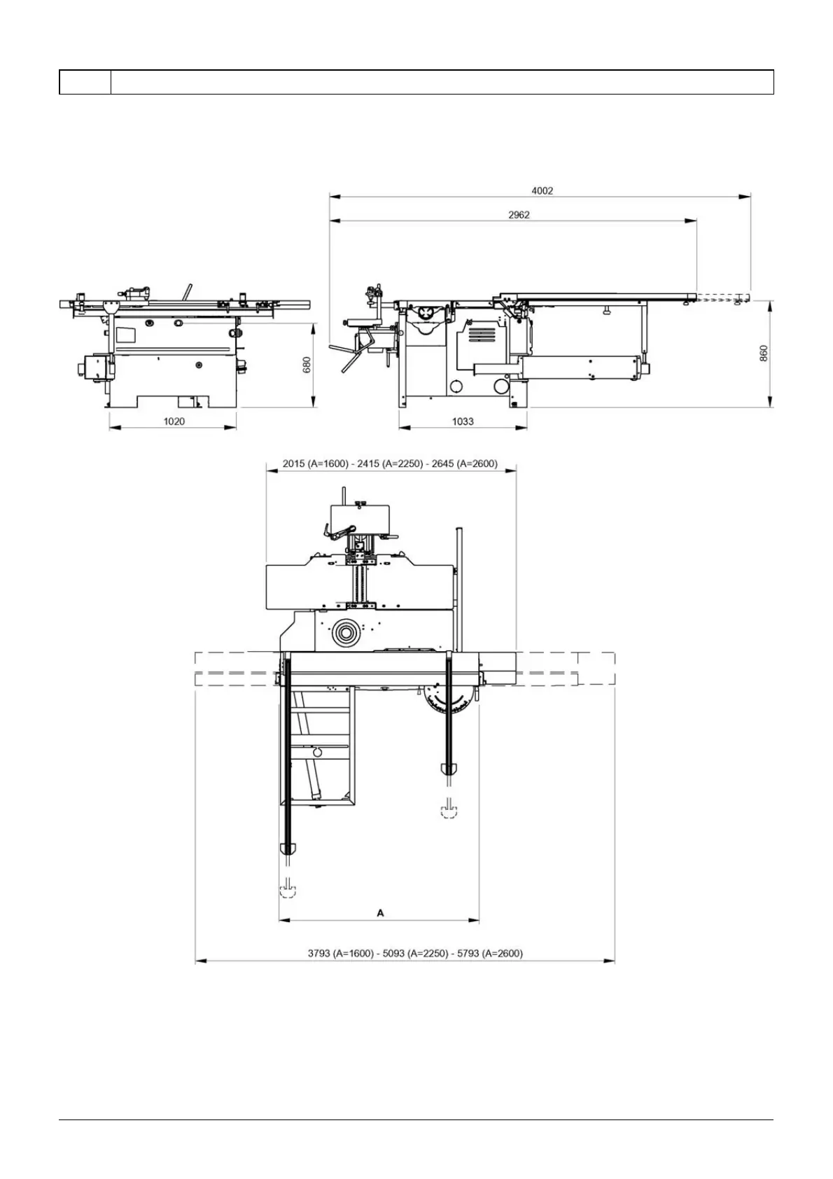
SCM CU 300C - Overall dimensions

SCM CU 300C
326 pages
Print Icon
To Next Page IconTo Next Page
To Next Page IconTo Next Page
To Previous Page IconTo Previous Page
To Previous Page IconTo Previous Page
Loading...
EN
3 - TECHNICAL SPECIFICATIONS
THIS MANUAL IS PROPERTY OF SCM INDUSTRIA S.P.A - ANY TOTAL OR PARTIAL REPRODUCTION IS STRICTLY FORBIDDEN Cap. 3 Pag. 19/22
3.6 OVERALL DIMENSIONS
(ev_3-6_0.0)
CU 300C

Table of Contents

Related product manuals