EasyManua.ls Logo

Siemens HiPath 3000 Series - Page 437

Siemens HiPath 3000 Series
1302 pages
To Next Page IconTo Next Page
To Next Page IconTo Next Page
To Previous Page IconTo Previous Page
To Previous Page IconTo Previous Page
Loading...
boards.fm
A31003-H3590-S100-7-7620, 06/2012
HiPath 3000/5000 V9, Service documentation
3-305
Nur für den internen Gebrauch Boards for HiPath 3000
Peripheral boards
Interfaces and Jumpers
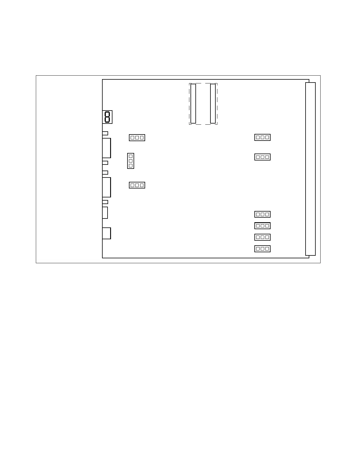
Figure 3-102 TMCAS-2 (for selected countries only) – Interfaces and Jumpers
1
X11
X21
X13
3 2 1
X12
X20
Modem (optional)
X909: CAS inter-
face 1
X910: CAS inter-
face 2
X803: V.24 inter-
face
X804: Ethernet (10/
100BaseT) inter-
face
X14
X999
3
2
1
X16
3 2 1
X17
X24
1 2 3
1 2 3
X25

Table of Contents

Related product manuals