EasyManua.ls Logo

Studer Vista 1 - Input Channel Block Diagrams

Studer Vista 1
401 pages
Print Icon
To Next Page IconTo Next Page
To Next Page IconTo Next Page
To Previous Page IconTo Previous Page
To Previous Page IconTo Previous Page
Loading...
Vista 1 Digital Mixing System
1-22 Introduction
Document generated: 18.04.17
SW V5.3
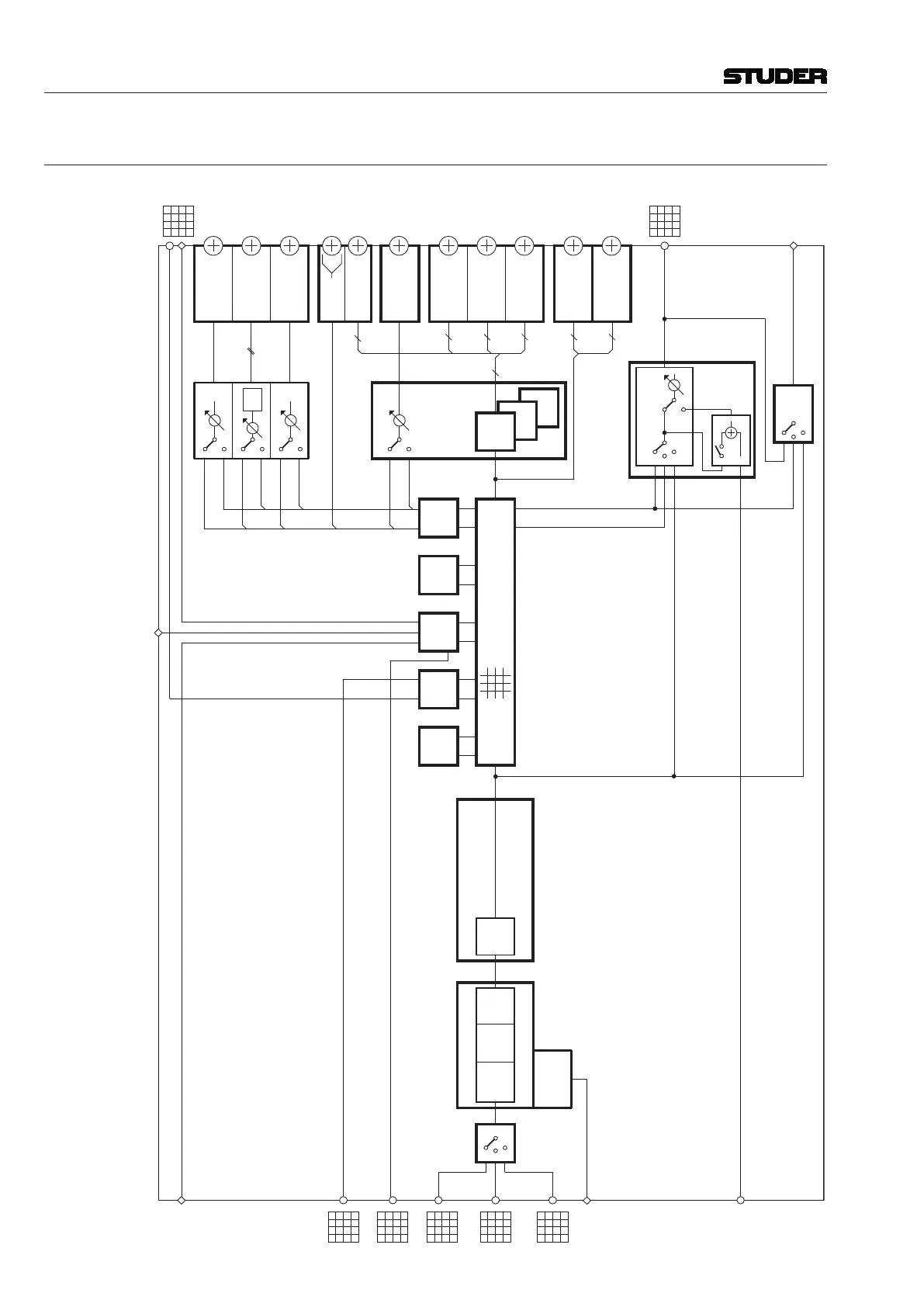
1.7 Input Channel Block Diagrams
Block Diagram of a Typical Mono Input Channel:
Essentially, all
VSP
L/R PAN
TALKBACK
PREAMP
CTRL
EQ / +
NOTCH
INSERT
PHASE
(Mono)
IN 1
IN 2
GEN (Generator)
INSERT RETURN
INP
SEL
CHANNEL
INPUTS
GR Meter
SC LINK INPUT
Input Mode Section
FILTER
DC
REJECT
GAIN
Input Process Section
SIDECHAIN IN
DIGITAL
PATCH
DIGITAL
PATCH
DIGITAL
PATCH
DIGITAL
PATCH
DIGITAL
PATCH
DYN /
V. DYN
FADER
MUTE
DELAY
PF AF
CHANNEL PATCH MATRIX
PF AF
PATCH
DIGITAL
DIGITAL
PATCH
MULTI-TRACK
Buses
MULTI-TRACK
Enh. Buses
DIR OUT
AF
PF
AINP
TB
DIRECT OUTPUT
TB
METER
SELECT
DO
AF
AINP
METER
DATA
N–X
Buses
N–1
Buses
PFL
1-8
1-8
1-8
1-8
1-8
1-8
1-8
STEREO AUX
Buses
GROUP
Buses
MASTER
Buses
MONO AUX
Buses
MPX
Buses
INSERT SEND
CHANNEL
OUTPUTS
PFL Bus
SOLO Bus
SC LINK OUTPUT
L
R
PAN
PF
AF
PF
AF
PF
AF
MONO AUX
MPX
PF
AF
MTR ENH.
STEREO AUX
MULTI-
FMT
PAN
channel types
have the same
structure,
regardless
of the type
(input, AUX,
group, master,
etc.)

Table of Contents

Other manuals for Studer Vista 1

Related product manuals