EasyManua.ls Logo

Kyocera FS-C8600DN - Detaching and Refitting the Engine PWB

Kyocera FS-C8600DN
546 pages
Print Icon
To Next Page IconTo Next Page
To Next Page IconTo Next Page
To Previous Page IconTo Previous Page
To Previous Page IconTo Previous Page
Loading...
2MN/2N1-1
1-5-49
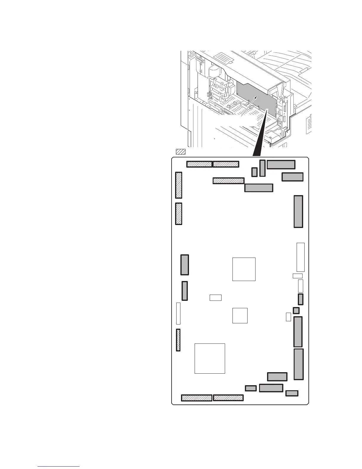
(2) Detaching and refitting the engine PWB
Procedure
1. Remove the controller box (see page 1-
5-44).
2. Remove twenty two connectors of fol-
lowing from the engine PWB.
YC1
YC2
YC3
YC4
YC5 (FFC connector with a lock)
YC6 (FFC connector with a lock)
YC7 (FFC connector with a lock)
YC10 (FFC connector with a lock)
YC26
YC9
YC8
YC46 (FFC connector with a lock)
YC11 (FFC connector with a lock)
YC12 (FFC connector with a lock)
YC15
YC16
YC18
YC17
YC19
YC20
YC21
YC22
*: When removing the FFC from the FFC
connector with a lock, remove the FFC
after released by lifting down the lock
lever (see page 1-5-45)
*: When removing the FFC from the YC-
46, remove the FFC after released by
lifting up the lock lever.
*: When connecting an FFC furnished
with the protrusions at both ends,
address the side with a blue-colored
tape towards the locking lever, insert
the FFC into the connector until the pro-
trusions are recessed, and raise the
lock lever to lock the FFC
(see page 1-5-45)
YC26
YC13
YC2
YC25
YC24
YC23 YC22
YC21
YC49
YC20
U1
U4
U8
YC46
YC8
YC9
YC10YC7
YC19
YC18
YC16
YC15
YC12
YC6
YC3
YC1
YC27
YC4YC5
YC11
YC17
A20 A1
B1
1
14
10
B20
A10
B10
A1
11261
21
3
20 1
B19 B1
A1
140
1
140150
11
22 12
112
A19
17
14
11
12
22
1
1
16
1601
1
B16 B1
24
1
13
12
1
8
A1 A16
150150
64
64
28 15
1
1
4
B1
Engine PWB
Engine PWB
FFC connector with a lock

Table of Contents

Related product manuals