EasyManua.ls Logo

Parker Compax3 I10T10 - Mounting and Dimensions C3 H

Parker Compax3 I10T10
230 pages
Print Icon
To Next Page IconTo Next Page
To Next Page IconTo Next Page
To Previous Page IconTo Previous Page
To Previous Page IconTo Previous Page
Loading...
Parker EME
Compax3 device description
192-120100 N16 C3I10T10 - December 2010
73
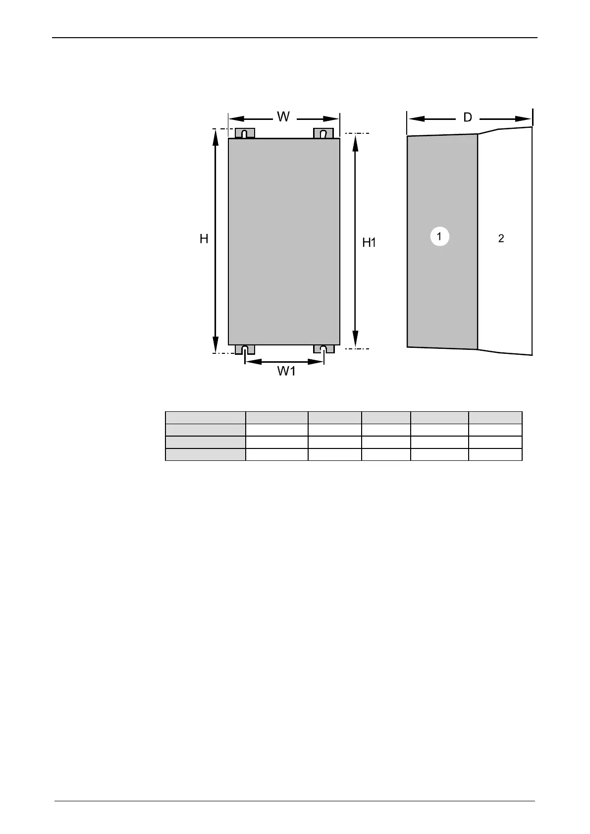
3.9.3. Mounting and dimensions C3H
The devices must be mounted vertically on a level surface in the control cabinet.
(1): Electronics
(2): Head dissipator
H H1 D W W1
C3H050V4
453mm 440mm 245mm 252mm 150mm
C3H090V4
668.6mm 630mm 312mm 257mm 150mm
C3H1xxV4
720mm 700mm 355mm 257mm 150mm
Mounting:4 screws M6
During operation, the device radiates heat (power loss). Please provide for a
sufficient mounting distance below and above the device in order to ensure free
circulation of the cooling air. Please do also respect the recommended distances of
other devices. Make sure that the mounting plate is not exhibited to other
temperature influences than that of the devices mounted on this very plate.
If two or more devices are combined, the mounting distances are added.
Dimensions:
Ventilation:

Table of Contents

Related product manuals