EasyManua.ls Logo

Furuno FEA-2107-BB - Activating Dialog Boxes on the Display

Furuno FEA-2107-BB
704 pages
Print Icon
To Next Page IconTo Next Page
To Next Page IconTo Next Page
To Previous Page IconTo Previous Page
To Previous Page IconTo Previous Page
Loading...
3. ECDIS Display
3-10
Information in chart legend sidebar
For detailed information see the chapters on vector charts (S57) and raster charts (ARCS).
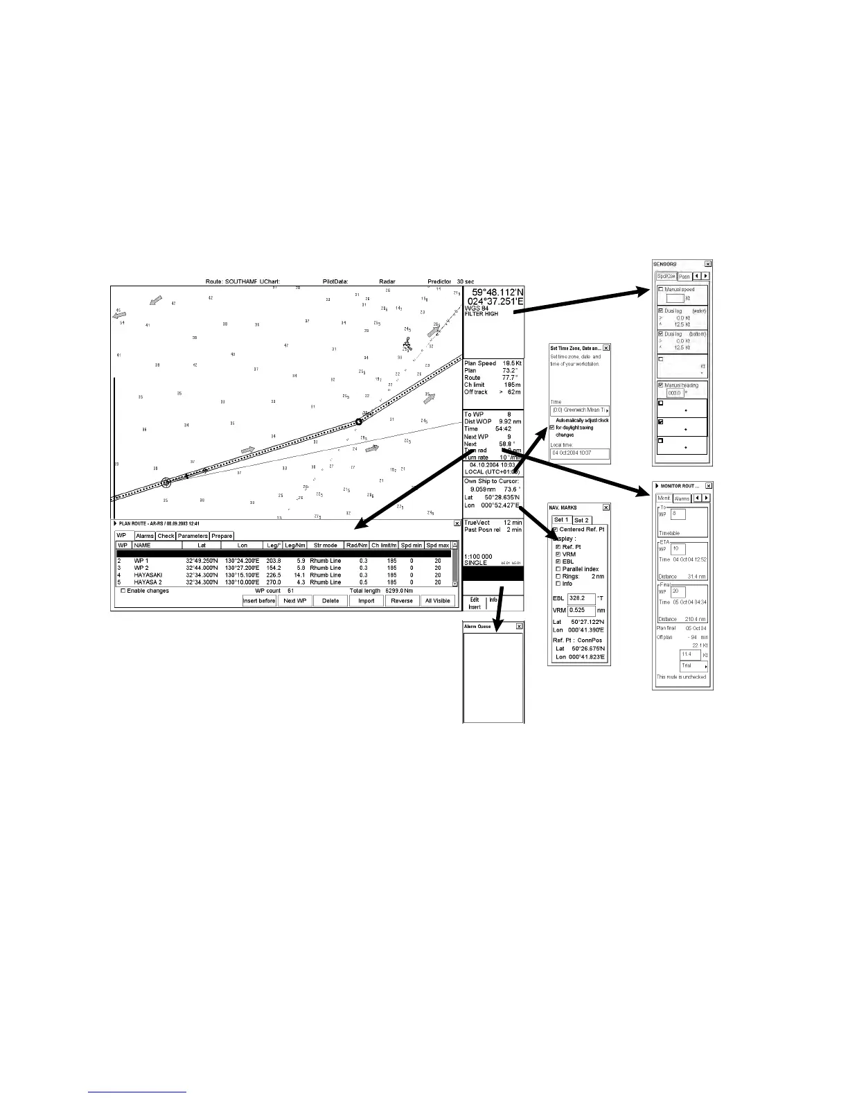
3.3.3 Activating dialog boxes on the display
There are several dialog boxes which can be activated by mouse-clicking over certain areas on the ECDIS display.
Place the cursor over the appropriate area then click the right or left mouse button to display the corresponding
dialog box on the ECDIS display. See the figure below to find the places and mouse button to click to get desired
dialog boxes on the display. To close a dialog box, click the X at the top right corner of the dialog box. Note that
only one dialog box may be shown at a time.
SET TIME
ALARM
QUEUE
NAV.
MARKS
MON.
ROUTE
SENSORS
PLAN ROUTE
North Up TM
HDG 070.0°
SPD
(CALC)
1.8
Kt
SB
(POSN)
1.7
Kt
COG
(POSN)
045.1°
SOG
(POSN)
2.0
Kt
ECDIS only
CPA 10 nm 10 min
ARPA
Gyro 2
Rate gyro (calc.)
0.0 /min
Gyro 1
Suggested spd
Trial spd
Spd profile

Table of Contents

Other manuals for Furuno FEA-2107-BB

Related product manuals