EasyManua.ls Logo

Monaco Executive 2005 - Inverter - 3000 Watt; RC7 GS Remote

Default Icon
538 pages
Print Icon
To Next Page IconTo Next Page
To Next Page IconTo Next Page
To Previous Page IconTo Previous Page
To Previous Page IconTo Previous Page
Loading...
Electrical Systems - House --- Section 8
The Executive 2005
341
INVERTER - 3000 WATT
Use the inverter, when shore power is unavailable and the generator will not be used as the
secondary AC power source option, to supply silent AC power to most receptacles, the television
and microwave. Use of the inverter will greatly increase house battery power consumption. Turn
off the inverter when not in use to conserve house battery power.
To turn the inverter On or Off:
• Momentarily press the inverter ON/OFF button on the RC7 remote control.
NOTE:
This information is not a replacement for the inverter manual. Consult the Inverter
Owner’s Manual for complete instructions.
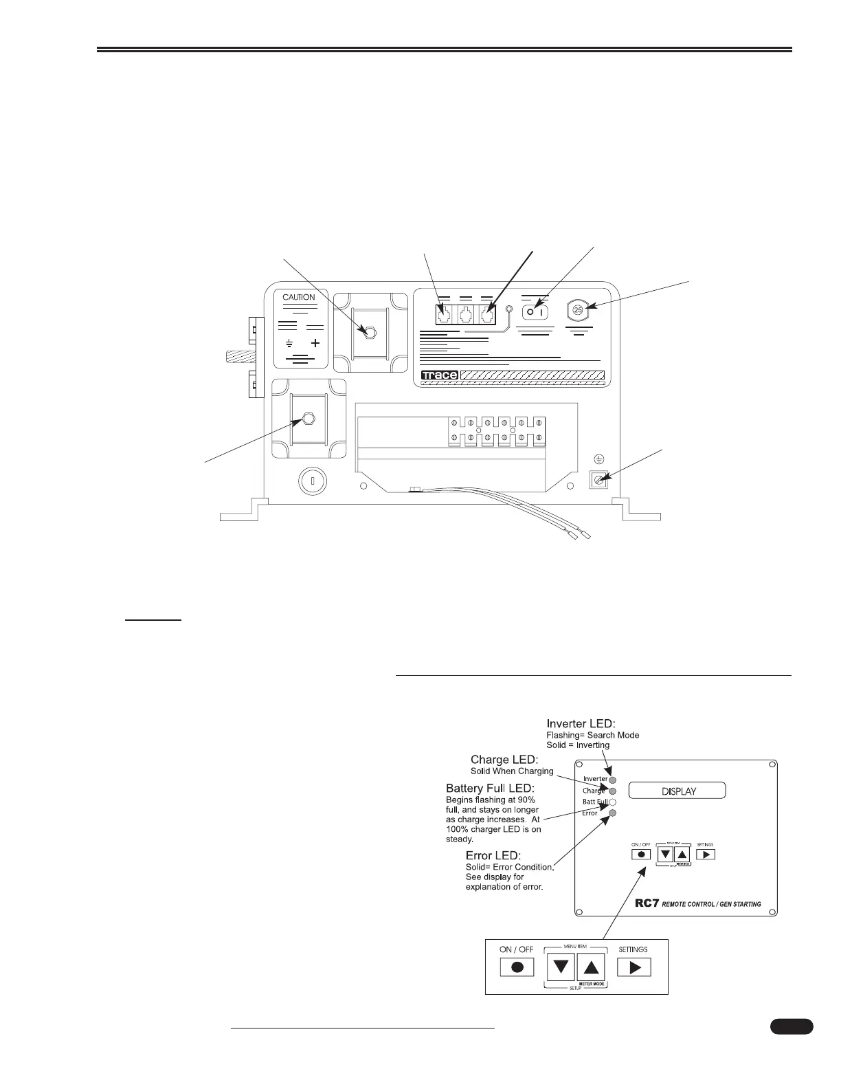
RC7 GS Remote
The RC7 GS remote control is used to
change or add features and set variable
parameters. The remote may also be used to
start and stop the generator.
RC7 GS Remote features include:
Automatic generator start.
• Fully adjustable battery charge rates.
Adjustable fuel gauge cut-out.
Adjustable charging curves for different
battery types.
Adjustable power sharing.
• Meters Menu.
030819
Bonding
Ground
Lug
Negative
Cable
Positive Cable
DC
Resetable
Circuit
Breaker
Power
Switch
Inverter Remote
Connection
Battery
Temperature
Sensor
060032h

Table of Contents

Related product manuals