EasyManua.ls Logo

TELEDYNE API T703U - The Absorption Path; Figure 9-20: T703 U O3 Photometer Gas Flow - Measure Cycle; Figure 9-21: T703 U O Photometer Gas Flow - Reference Cycle

Default Icon
273 pages
Print Icon
To Next Page IconTo Next Page
To Next Page IconTo Next Page
To Previous Page IconTo Previous Page
To Previous Page IconTo Previous Page
Loading...
Principles of Operation Teledyne API T703/T703U Calibrator Operation Manual
204
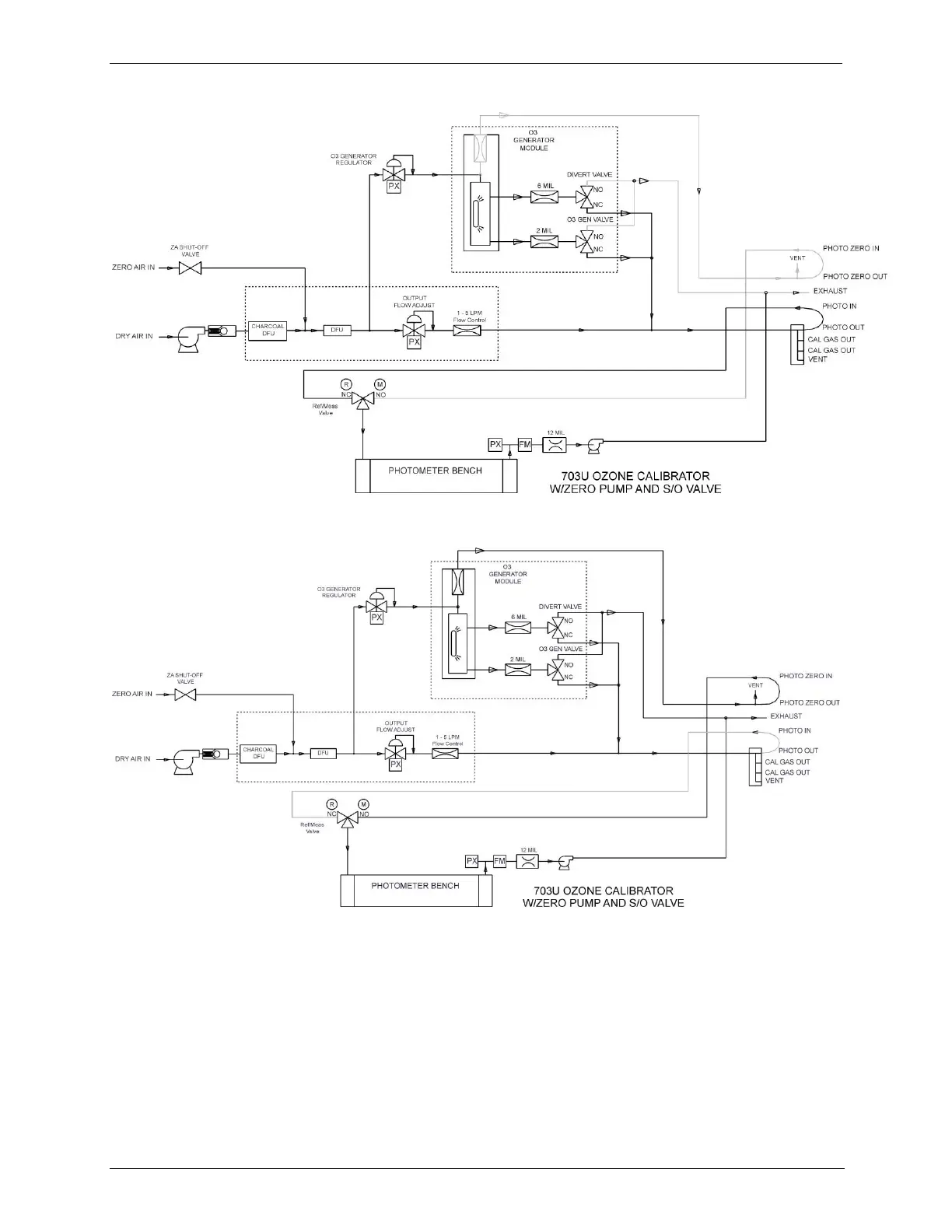
Figure 9-20: T703U O3 Photometer Gas Flow Measure Cycle
Figure 9-21: T703U O
3
Photometer Gas Flow Reference Cycle
The Absorption Path 9.6.1.3.
In the most basic terms, the photometer uses a high energy, mercury vapor lamp
to generate a beam of UV light. This beam passes through a window of material
specifically chosen to be both non-reactive to O
3
and transparent to UV radiation
at 254nm and into an absorption tube filled with sample gas.
Because ozone is a very efficient absorber of UV radiation the absorption path
length required to create a measurable decrease in UV intensity is short enough
(approximately 42 cm) that the light beam is only required to make one pass
07223D DCN7107

Table of Contents