EasyManua.ls Logo

Toro Groundmaster Series - Auxiliary Valve Circuit (Optional)

Toro Groundmaster Series
355 pages
Print Icon
To Next Page IconTo Next Page
To Next Page IconTo Next Page
To Previous Page IconTo Previous Page
To Previous Page IconTo Previous Page
Loading...
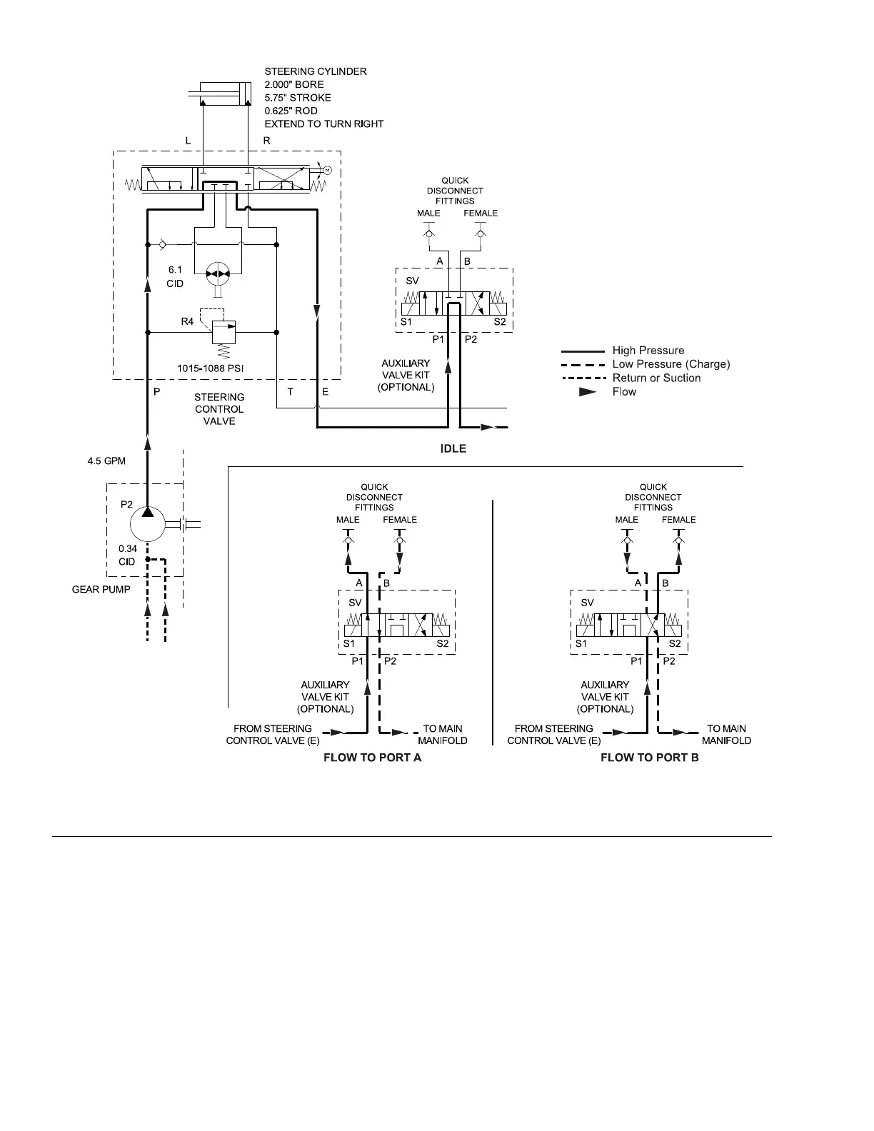
AuxiliaryValveCircuit(Optional)
g298934
Figure27
AuxiliaryValveCircuitDiagram
Anauxiliaryvalvekitisavailabletosupportthehydraulicneedsofvarious
attachments.Thekitincludesa3positioncartridgestylesolenoidvalve(SV)
inaseparatemanifold.Thevalvehas2coils(S1andS2).Theauxiliaryvalve
manifoldislocatednearthefrontofthemachineundertheoperatoroorplate.
Gearpump(P2)suppliesoilowforthesteeringcircuit,optionalauxiliaryvalve
circuit,liftcircuit,andalsoprovidesaconstantsupplyofchargeoiltotheclosed
looptractioncircuit.Thepumpoutputowstothesteeringcontrolvalvebefore
supplyingthelift,auxiliaryvalve,andchargecircuitneedssothatthesteering
circuithaspriority.
HydraulicSystem:HydraulicFlowDiagrams
Page5–20
Groundsmaster
®
3200,3300and3310
19240SLRevA

Table of Contents

Related product manuals