EasyManua.ls Logo

Toro Groundmaster Series - Testing the Steering and Lift Circuit - Steering Cylinder and Circuit Relief Valve

Toro Groundmaster Series
355 pages
Print Icon
To Next Page IconTo Next Page
To Next Page IconTo Next Page
To Previous Page IconTo Previous Page
To Previous Page IconTo Previous Page
Loading...
TestingtheSteeringandLiftCircuitSteeringCylinderandCircuit
ReliefValve
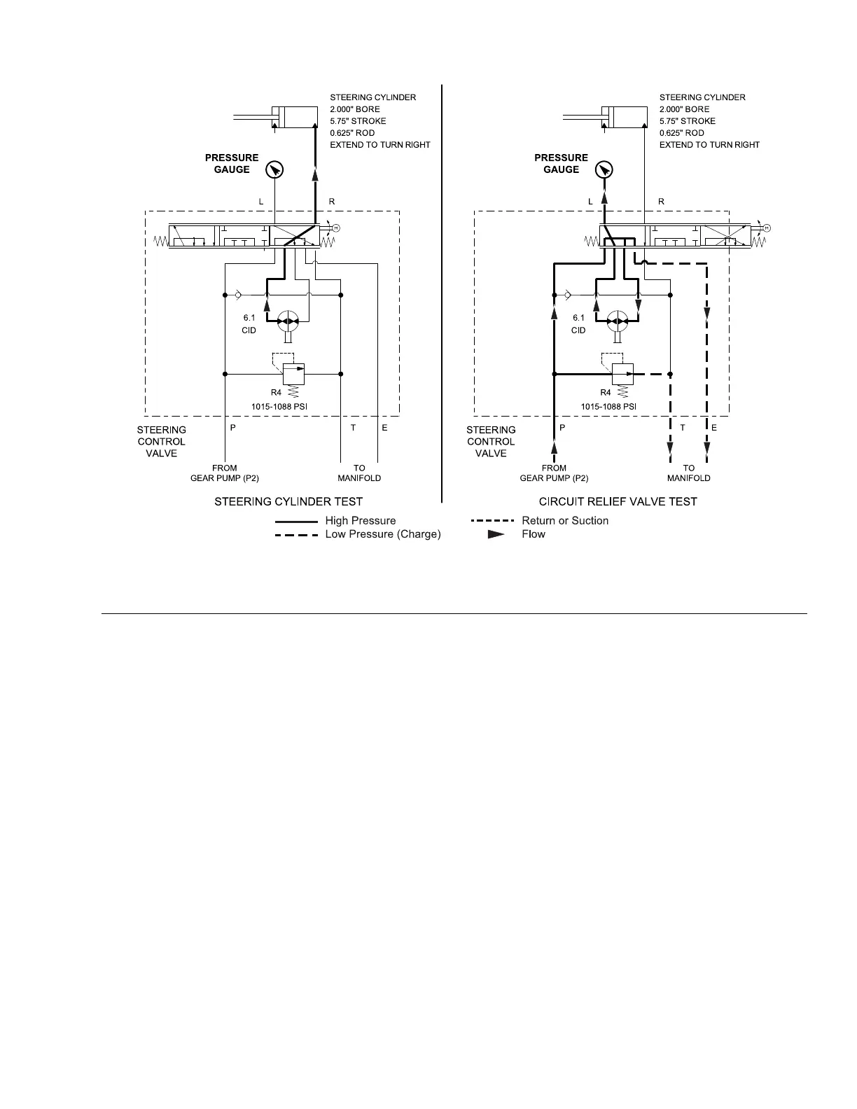
g301301
Figure40
SteeringCylinderandCircuitReliefValve
Unitsteeringperformancewillbeaffectedbyincorrectreartirepressure,binding
inthehydraulicsteeringcylinder,extraweightonthevehicle,and/orbindingof
thesteeringlinkageorspindles.Ensurethattheseconditionsarecheckedand
functioningproperlybeforeproceedingwithanysteeringsystemhydraulictesting.
Note:Thereliefvalveforthesteeringcircuitisintegratedintothesteering
controlvalve.
TestProcedure
1.Ensurethatthehydraulicuidisatnormaloperatingtemperatureby
operatingthemachineforatleast10minutes.
2.Drivethemachineslowlyinagureeightonaatlevelsurface.
A.Thereshouldbenoshakingorvibrationinthesteeringwheelorrear
wheels.
B.Thesteeringwheelmovementsshouldbefollowedimmediatelyby
acorrespondingrearwheelmovementwithoutthesteeringwheel
continuingtoturn.
3.Stoptheunitwiththeenginerunning.Turnthesteeringwheelwithsmall
quickmovementsinbothdirections.Letgoofthesteeringwheelaftereach
movement.
A.Thesteeringcontrolvalveshouldrespondtoeachsteeringwheel
movement.
Groundsmaster
®
3200,3300and3310
Page5–45
HydraulicSystem:TestingtheHydraulicSystem
19240SLRevA

Table of Contents

Related product manuals