EasyManua.ls Logo

Mazda RX-8 2004 - Input;Output Check Mode Outline

Mazda RX-8 2004
540 pages
Print Icon
To Next Page IconTo Next Page
To Next Page IconTo Next Page
To Previous Page IconTo Previous Page
To Previous Page IconTo Previous Page
Loading...
INSTRUMENTATION/DRIVER INFO.
0922–6
End Of Sie
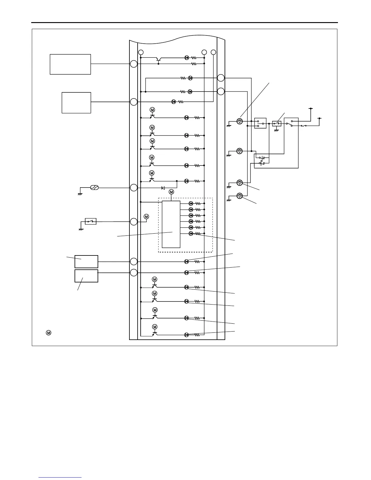
INPUT/OUTPUT CHECK MODE OUTLINE
CHU092255430S05
The microcomputer built into instrument cluster detects the quality of input signal or individual part.
Input/output check mode has both input circuit check and individual part check functions.
End Of Sie
b
c
a
SAS CONTROL
MODULE
KEYLESS
CONTROL
MODULE
BRAKE FLUID-LEVEL
SENSOR
PARKING BRAKE
SWITCH
AIR BAG SYSTEM
WARNING LIGHT
TURN INDICATOR
LIGHT(LH)
TURN INDICATOR
LIGHT (RH)
SECURITY LIGHT
OIL LEVEL
WARNING LIGHT
DSC INDICATOR
LIGHT
DSC OFF LIGHT
ABS WARNING
LIGHT
BRAKE SYSTEM
WARNING LIGHT
P
N
R
D
M
GEAR POSITION INDICATOR
CRUISE SET INDICATOR LIGHT
WASHER FLUID-LEVEL
WARNING LIGHT
AUTO LEVELING
INDICATOR LIGHT
CRUISE MAIN INDICATOR LIGHT
EPS WARNING LIGHT
FRONT TURN LIGHT (LH)
FRONT TURN LIGHT (RH)
REAR
TURN
LIGHT
(LH)
REAR TURN LIGHT (RH)
TURN
SWITCH
FLASHER
CONTROL
MODULE
HAZARD
WARNING
SWITCH
IG1
B+
2K
2F
1D
2M
2H
2J
2G
2I
: TO MICROCOMPUTER
TIRE PRESSURE
WARNING LIGHT
WASHER FLUID-LEVEL
SENSOR
AUTO LEVELING
CONTROL MODULE
SELECTOR INDICATOR
DRIVER CIRCUIT
AT
CHU0922S003

Table of Contents

Related product manuals