EasyManua.ls Logo

Omron SYSDRIVE MX2 SERIES - Page 415

Omron SYSDRIVE MX2 SERIES
446 pages
Print Icon
To Next Page IconTo Next Page
To Next Page IconTo Next Page
To Previous Page IconTo Previous Page
To Previous Page IconTo Previous Page
Loading...
9-22
9-3 Options
SYSDRIVE MX2 Series USER'S MANUAL (3G3MX2-Axxxx)
9
Specifications
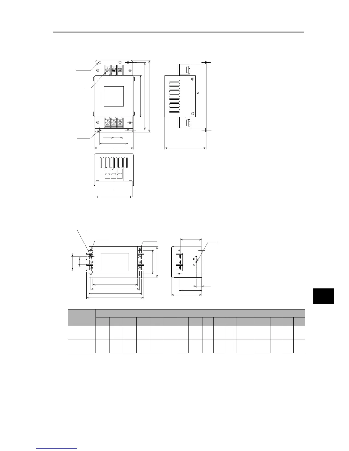
3G3AX-NFI25/-NFI26/-NFI45/-NFI46
3G3AX-NFI27/-NFI28
Inverter side
65
90
(16)
L1' L2' L3'
L1 L2 L3
155
165
2-φ4.5
M6
(95)
Power supply
side
2-4.5×6
95
Model
Dimensions (Unit: mm)
A B C D E F G H J J2 K L M N P W
3G3AX-
NFI27
217 200 185 170 120 90 44 115 85 82 20
R2.75
Length 7
5.5
dia.
M6 M4 17
3G3AX-
NFI28
254 230 215 200 150 120 57 115 80 75 30
R3.75
Length 8
6.5
dia.
M8 M6 23
IN
Inverter side
A
6-N
G
Power supply side
L1' L2' L3'
L3 L2 L1
B
C
D
F
E
W
2-L
2-M
J
H
J2
K
P

Table of Contents

Related product manuals