EasyManua.ls Logo

Siemens LOGO! - 4.4.18 Analog comparator

Siemens LOGO!
332 pages
Print Icon
To Next Page IconTo Next Page
To Next Page IconTo Next Page
To Previous Page IconTo Previous Page
To Previous Page IconTo Previous Page
Loading...
LOGO! Manual
A5E00380835-01
178
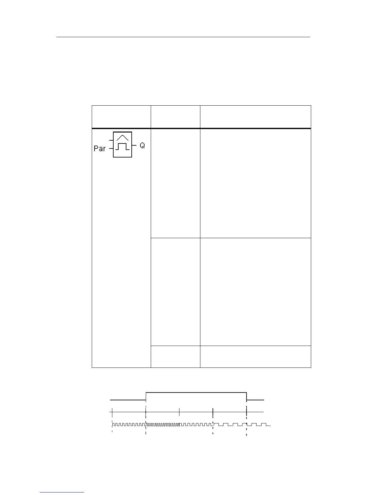
4.4.15 Threshold trigger
Short description
The output is set and reset with two configurable threshold
triggers.
Symbol in
LOGO!
Wiring Description
Fre
Input Fre The function counts the 0 to 1
transitions at input Fre. 1 to 0
transitions are not counted.
Use
inputs I5/I6 for high-speed
counting (only LOGO!
12/24 RC/RCo and LOGO!
24/24o): max. 2 kHz.
any other input or circuit
component for counting low
frequency signals (5 Hz).
Parameter On: On threshold
Range of values:
0000...9999
Off: Off threshold
Range of values:
0000...9999
G_T: Time interval or gate time
during which the input
pulses are measured.
Range of values:
00:05 s...99:99 s
Output Q Q is set and reset at the
thresholds.
Timing diagram
Q
Off = 5
f
a
= 9 f
a
= 10 f
a
= 8 f
a
= 4
G_T
Fre
On = 9
f
a
= Input frequency
LOGO! functions

Table of Contents

Other manuals for Siemens LOGO!

Related product manuals