EasyManua.ls Logo

Branson 2000X - Page 227

Branson 2000X
317 pages
Print Icon
To Next Page IconTo Next Page
To Next Page IconTo Next Page
To Previous Page IconTo Previous Page
To Previous Page IconTo Previous Page
Loading...
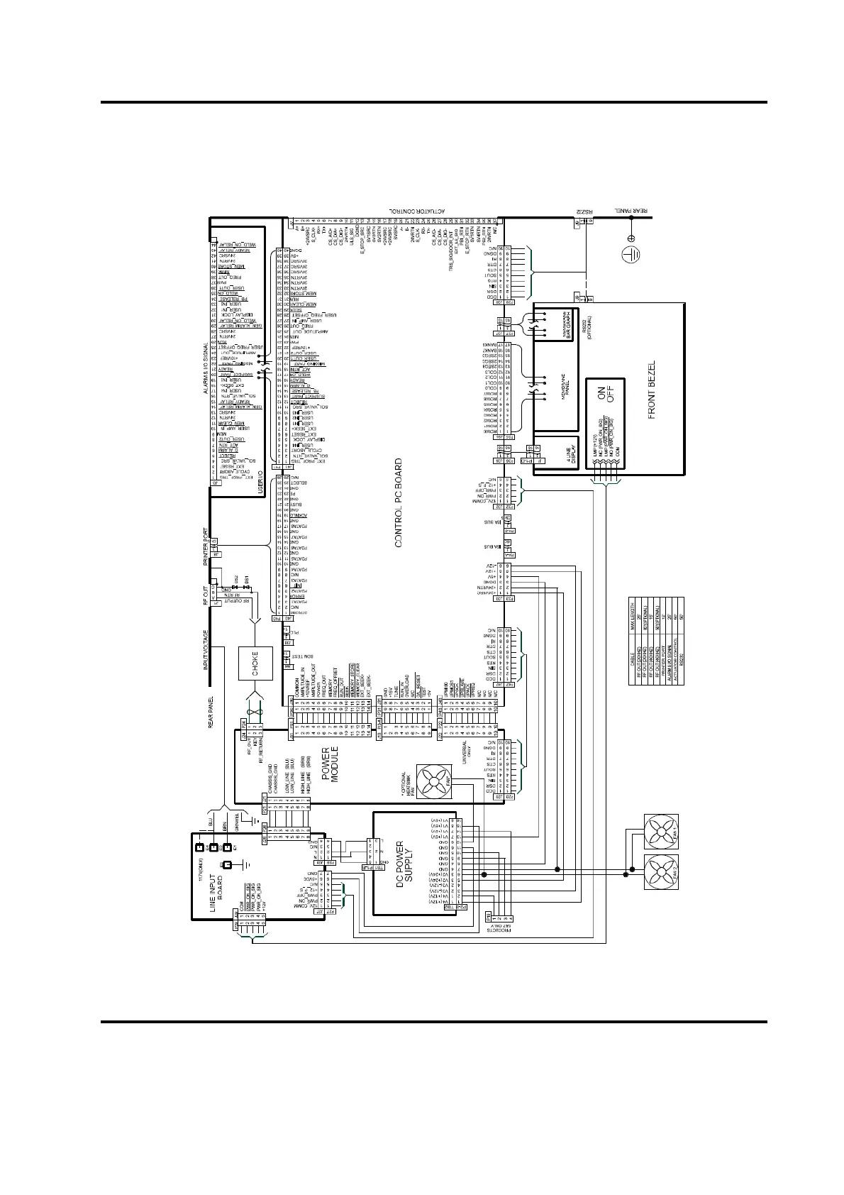
2000X energy Power Supply Chapter 7: Maintenance
Instruction Manual Circuits
011-003-991 EN 7-9
Figure 7.2 Interconnect Diagram, Power Supply

Table of Contents

Related product manuals