EasyManua.ls Logo

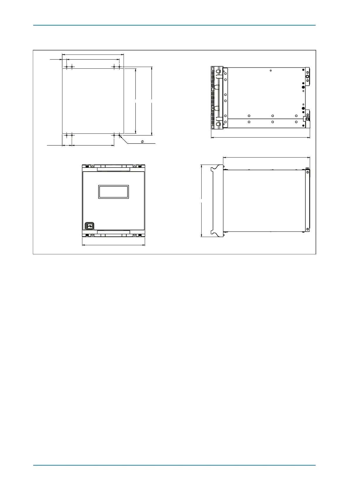
GE P24DM - Figure 165: 30 TE Case Dimensions

GE P24DM
600 pages
Print Icon
To Next Page IconTo Next Page
To Next Page IconTo Next Page
To Previous Page IconTo Previous Page
To Previous Page IconTo Previous Page
Loading...
151.0mm
159.0mm 168.0mm
129.5mm 10.75
8 holes
3.4mm
23.7mm 103.6mm
154.2mm
177.0mm
213.1mm
242.7mm
A A
A A
B B
B B
A = Clearance hole
B = Mounting hole
E01404
Figure 165: 30TE case dimensions
P24xM Chapter 18 - Installation
P24xM-TM-EN-2.1 393

Table of Contents

Related product manuals