EasyManua.ls Logo

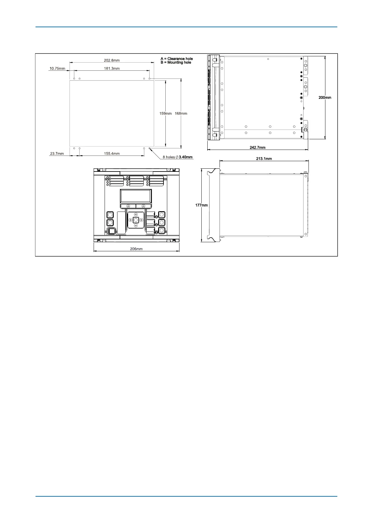
GE P24DM - Figure 166: 40 TE Case Dimensions

GE P24DM
600 pages
Print Icon
To Next Page IconTo Next Page
To Next Page IconTo Next Page
To Previous Page IconTo Previous Page
To Previous Page IconTo Previous Page
Loading...
A B B A
ABBA
E01464
Figure 166: 40TE case dimensions
Chapter 18 - Installation P24xM
394 P24xM-TM-EN-2.1

Table of Contents

Related product manuals