EasyManua.ls Logo

YASKAWA SGDV SERVOPACK - Page 256

YASKAWA SGDV SERVOPACK
398 pages
Print Icon
To Next Page IconTo Next Page
To Next Page IconTo Next Page
To Previous Page IconTo Previous Page
To Previous Page IconTo Previous Page
Loading...
www.dadehpardazan.ir 88594014-15
6.7 Vibration Suppression Function (Fn205)
6-53
6
Adjustments
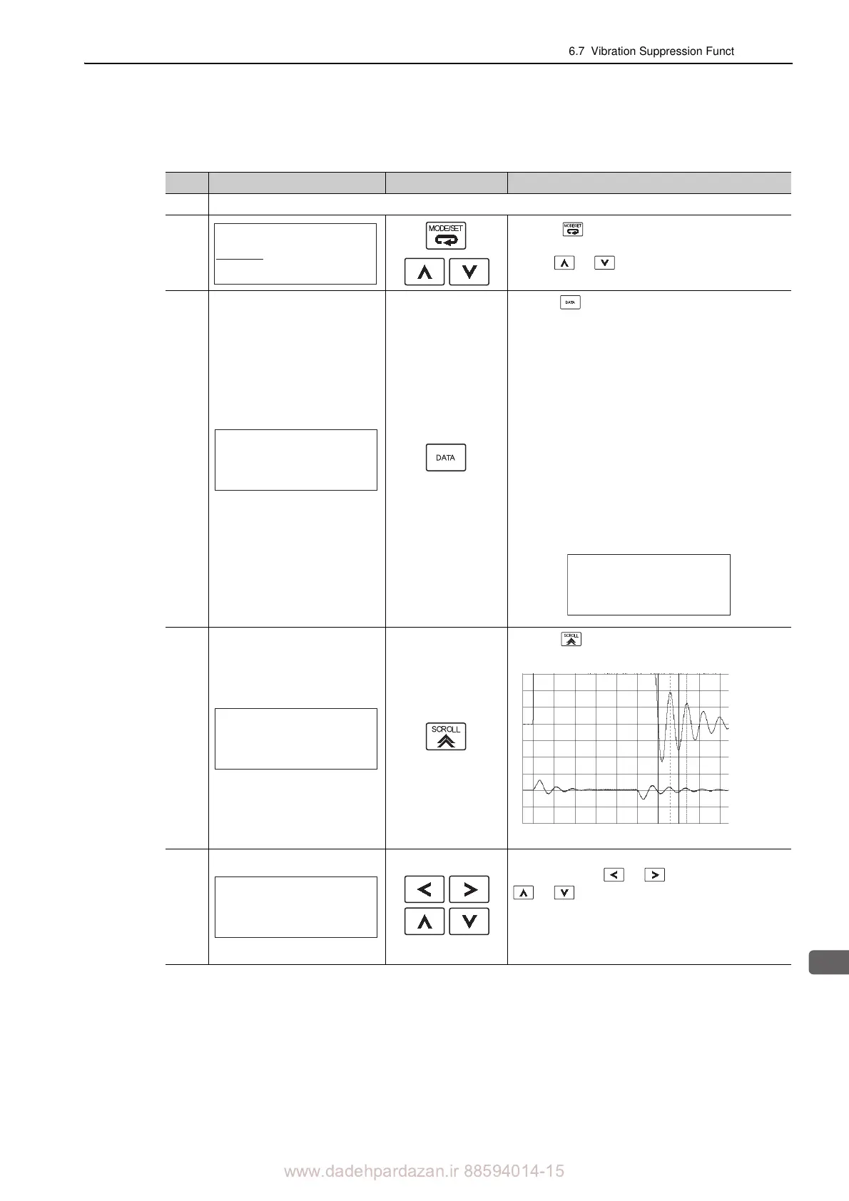
(2) Operating Procedure
Step Display after Operation Keys Operation
1 Input a operation reference and take the
following steps while repeating positioning.
2
Press the Key to view the main menu for the
utility function.
Use the or Key to move through the list,
select Fn205.
3
Press the Key. The display shown on the left will
appear.
Measure f: Measurement frequency
Setting f: Setting frequency [Factory-set to the set
value f
or Pn145]
If the setting frequency a
nd actual operating fre-
quency are different, "Setting" will flash.
Note:
Frequency detection will not be
performed if there is
no vibration or the vibration frequency is outside the
range of detectable frequencies. The following screen
will be displayed if vibration is not detected. If the
vibration frequencies are not detected, prepare a
means of detecting and measuring the vibration.
When the vibration frequencies are measured, go to
step 5 and manually set the measured vibration fre-
quency to “Setting f.”
4
Press the Key. The displayed “Measure f” value
will be displayed as the “Setting f” value as well.
Example of measured waveform
5
If the vibration is not completely suppressed
, select
the digit with the or Key, and press the
or Key to fine-tune the frequency “setting
f.” Skip this step and go to step 7 if the fine-tuning of
the
frequency is not necessary.
Note: If the setting frequency and actual operating
fr
equency are different, "Setting" will flash.
㧾㨁㧺㧲㨁㧺㧯㨀㧵㧻
㧲㨚㧞㧜㧠㧦㧭㧙㨂㨕㨎ޓ㧿㨡㨜
㧲㨚㧞㧜㧡㧦㨂㨕㨎ޓ㧿㨡㨜
㧲㨚㧞㧜㧢㧦㧱㨍㨟㨥ޓ㧲㧲㨀
㧲㨚㧞㧜㧣㧦㨂㧙㧹㨛㨚㨕㨠㨛㨞
㧾㨁㧺㨂㨕㨎㧿㨡㨜

㧹㨑㨍㨟㨡㨞㨑㨒㧩㧜㧝㧜㧚㧠㧴㨦
㧿㨑㨠㨠㨕㨚㨓㨒㧩㧜㧡㧜㧚㧠㧴㨦
㧾㨁㧺㨂㨕㨎㧿㨡㨜

㧹㨑㨍㨟㨡㨞㨑㨒 㧩㧙㧙㧙㧙㧙㧴㨦
㧿㨑㨠㨠㨕㨚㨓㨒 㧩㧜㧡㧜㧚㧜㧴㨦
㧾㨁㧺㨂㨕㨎㧿㨡㨜

㧹㨑㨍㨟㨡㨞㨑㨒㧩㧜㧝㧜㧚㧠㧴㨦
㧿㨑㨠㨠㨕㨚㨓㨒㧩㧜㧝㧜㧚㧠㧴㨦
Position
Error
Force
reference
Lin-
ear
㧾㨁㧺㨂㨕㨎㧿㨡㨜

㧹㨑㨍㨟㨡㨞㨑㨒㧩㧜㧝㧜㧚㧠㧴㨦
㧿㨑㨠㨠㨕㨚㨓㨒㧩㧜㧝㧞㧚㧠㧴㨦

Table of Contents

Related product manuals