EasyManua.ls Logo

ATEN KE6900T - Page 441

ATEN KE6900T
466 pages
To Next Page IconTo Next Page
To Next Page IconTo Next Page
To Previous Page IconTo Previous Page
To Previous Page IconTo Previous Page
Loading...
Appendix
417
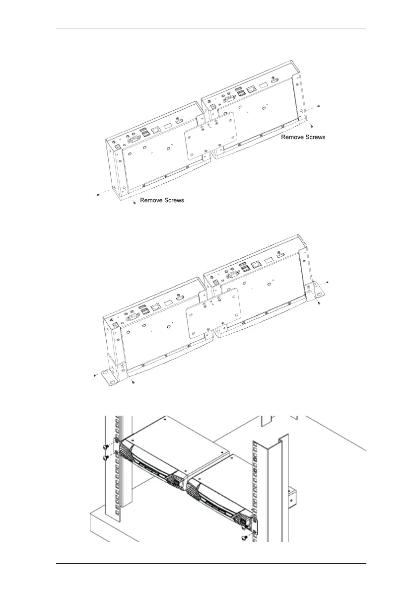
3. Remove the bottom and side screws from each unit.
4. Use the screws in step 3 to install the left and right mounting brackets.
5. Screw the mounting brackets onto the rack.

Table of Contents

Related product manuals