EasyManua.ls Logo

LOYTEC L-INX - Linx-22 X; Product Label; Linx-10 X;11 X

Default Icon
305 pages
Print Icon
To Next Page IconTo Next Page
To Next Page IconTo Next Page
To Previous Page IconTo Previous Page
To Previous Page IconTo Previous Page
Loading...
L-INX User Manual 40 LOYTEC
Version 4.0 LOYTEC electronics GmbH
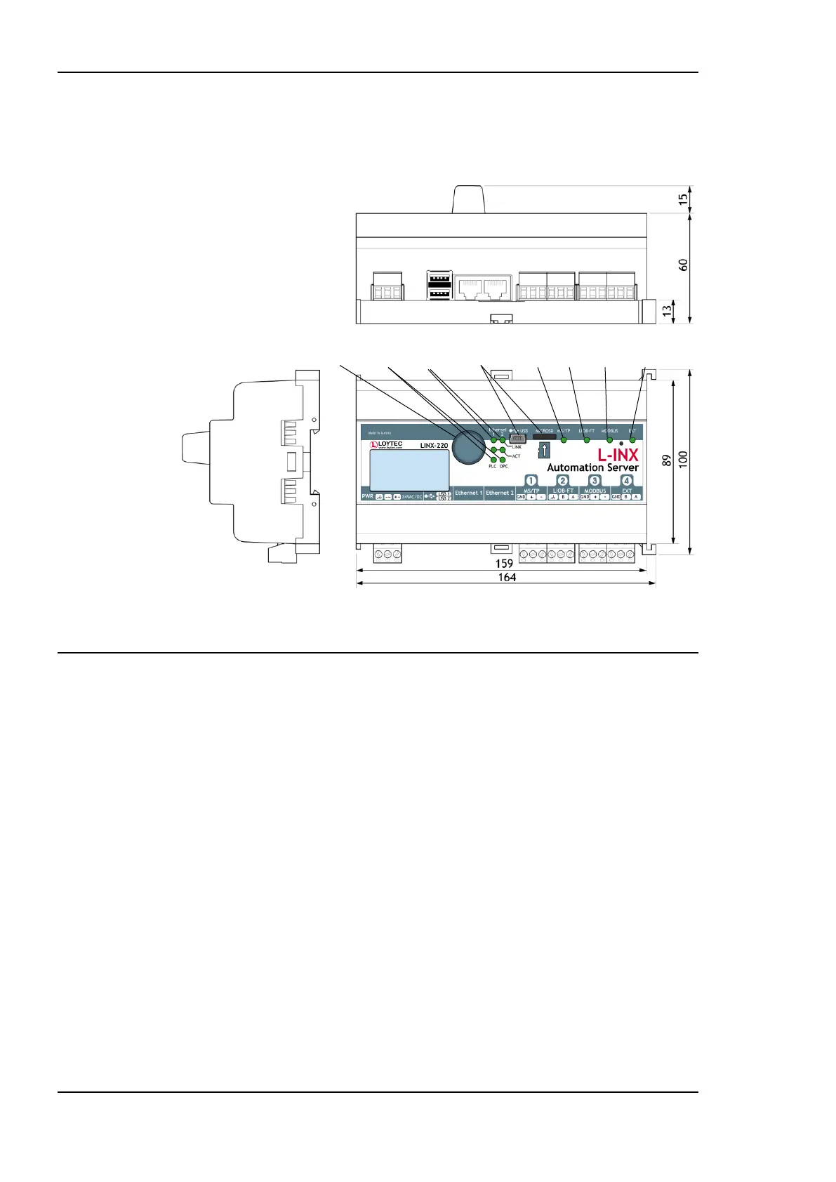
3.1.4 LINX-22X
The LINX-22X enclosure is 159 mm wide for DIN rail mounting, following DIN 43 880
(see Figure 25).
USB,
SD Card
MS/TP
LED
Ethernet
Ethernet
LEDs
Jog
Dial
USB
Modbus
LED
M-Bus
LED
OPC, PLC
LEDs
Power
FT
LED
Figure 25: LINX-22X Enclosure (dimensions in mm).
3.2 Product Label
3.2.1 LINX-10X/11X
The product label on the side of the LINX-10X/11X contains the following information (see
Figure 26):
L-INX order number with bar-code (e.g., LINX-100, LINX-111),
serial number with bar-code (Ser#),
unique node ID and virtual ID of each port (NID1, VID1) with bar-code,
Ethernet MAC ID with bar-code (MAC1).

Table of Contents