EasyManua.ls Logo

FOR-A HVS-350HS - 3 Connection; Basic Connection

FOR-A HVS-350HS
266 pages
Print Icon
To Next Page IconTo Next Page
To Next Page IconTo Next Page
To Previous Page IconTo Previous Page
To Previous Page IconTo Previous Page
Loading...
15
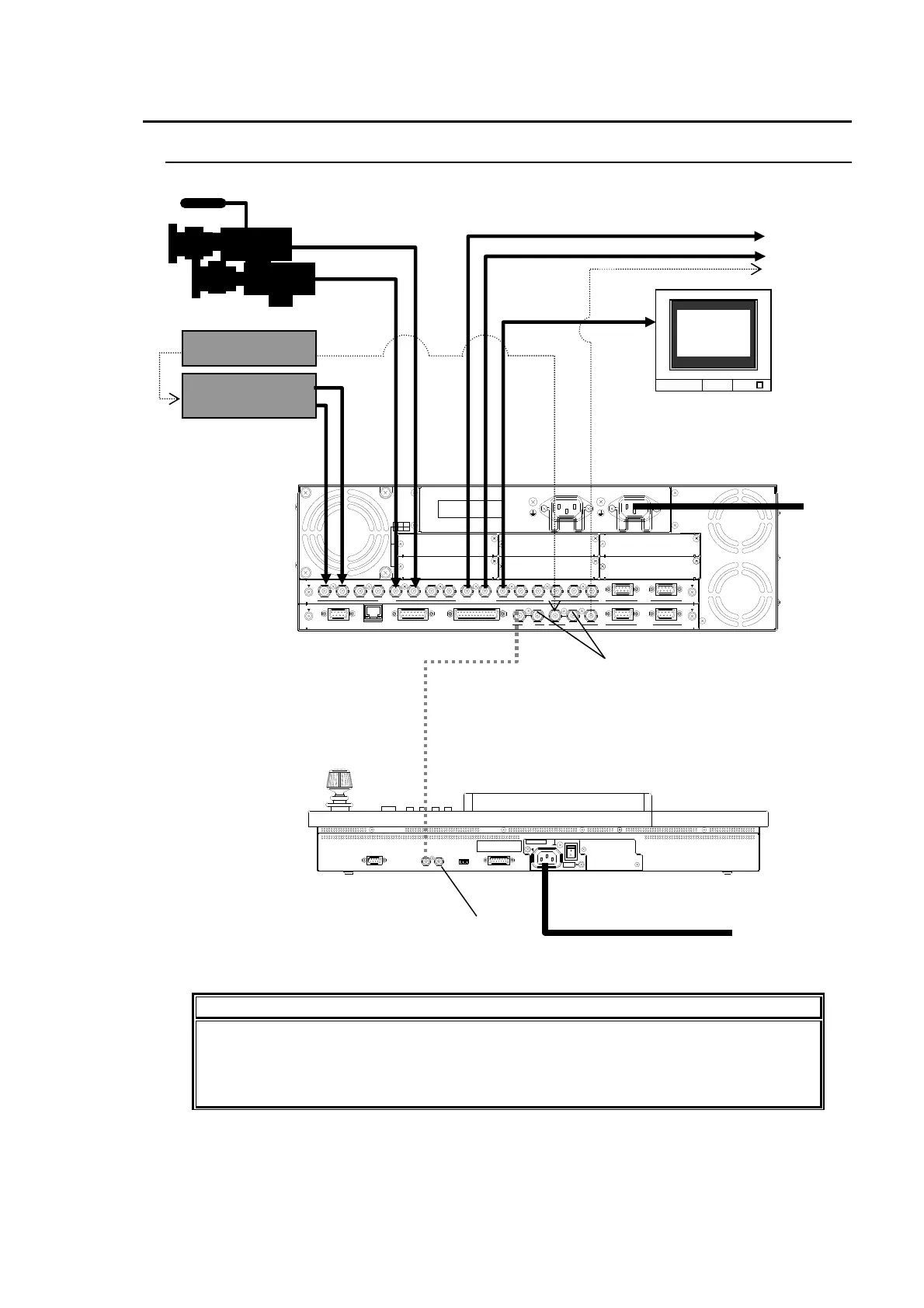
3. Connection
3-1. Basic Connection
NOTE
See section 29-1. "ARCNET" for connecting between the main unit and
HVS-35OU/35ROU via Arcnet. See section 20-3. "Selecting Reference Signal" for
reference signal setting. See section 6-2. "Preview Set Up" for how to display the
preview image.
RATING LABEL
DB
ECA
OPTION SLOT
F
I
/O
4
3
2
1
S
D
I
IN
P
U
T
6
7
8
5
A
U
X
2
R
S
-
4
2
2
1
P
G
M
P
G
M
M
/E
P
/
P
4
1
2
3
5
6
C
P
U
/
G
E
N
L
O
C
K
T
O
O
U
G
E
N
L
O
C
K
R
E
F
I
N
R
E
F
O
U
T
G
P
I I
N
E
D
IT
O
R
G
P
I/
T
A
L
L
Y
O
U
T
4
R
S
-
4
2
2
3
21
A
C
1
0
0
V
-
2
4
0
V
5
0
/
6
0
H
z
IN
A
C
1
0
0
-
2
4
0
V
5
0
/
6
0
H
z
I
N
L
A
N
POWER 1 P OWER 2
GPI/TALLY OUT
SER .N O .
HVS- 35OU
A C1 00- 240 V 50 /60 Hz I N
RATING LABEL
CO NTROL
TO MU
POWER
OFF
ON
(SER VICE)
TSG (Reference)
Video Server
VCR, etc
Preview
(AUX1)
To AC
power
source
75-ohm terminato
r
M/E PGM
P/P PGM
Reference
HD/SD SDI
Reference (BNC)
HD/SD SDI
A
RCNET (BNC)
To AC
power
source
75-ohm terminato
r
To other devices

Table of Contents