EasyManua.ls Logo

Fujitsu PRIMERGY RX2530 M4

Fujitsu PRIMERGY RX2530 M4
470 pages
To Next Page IconTo Next Page
To Next Page IconTo Next Page
To Previous Page IconTo Previous Page
To Previous Page IconTo Previous Page
Loading...
202 Upgrade and Maintenance Manual RX2530 M4
Expansion cards and backup units
9.1 Basic information
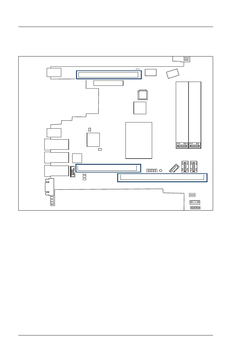
Figure 112: PCIe slots for riser cards
I For system relevant information, see the hardware configurator of your
server available online at the following address:
http://ts.fujitsu.com/products/standard_servers/index.htm
For Japan:
http://www.fujitsu.com/jp/products/computing/servers/primergy/
iRMC
S5
external connectors
INDI
C
TPM
USB 3.0
Shared
LAN 1
Slot riser card / slot 1 and 2 (CPU 1)
SATA
0-3
USB 3.0
Slot riser card / slot 3 (CPU 1)
Slot riser card / slot 4 (CPU 2)
Slot 3
COM 1
Slot 2
Slot 1
Slot 4
Micro
SATA
4-7
SATA
ODD
JP1
Slot OCP module
SD
VGA
Management
LAN
LAN 2
M.2
SSD1
M.2
SSD2
PCIe
VPP CPU
Port 1
YELLOW
PCIe
Port 0
RED
VROC

Table of Contents

Other manuals for Fujitsu PRIMERGY RX2530 M4

Related product manuals