EasyManua.ls Logo

Fujitsu PRIMERGY RX2530 M4

Fujitsu PRIMERGY RX2530 M4
470 pages
To Next Page IconTo Next Page
To Next Page IconTo Next Page
To Previous Page IconTo Previous Page
To Previous Page IconTo Previous Page
Loading...
212 Upgrade and Maintenance Manual RX2530 M4
Expansion cards and backup units
9.4 OCP (Open Compute Project) modules
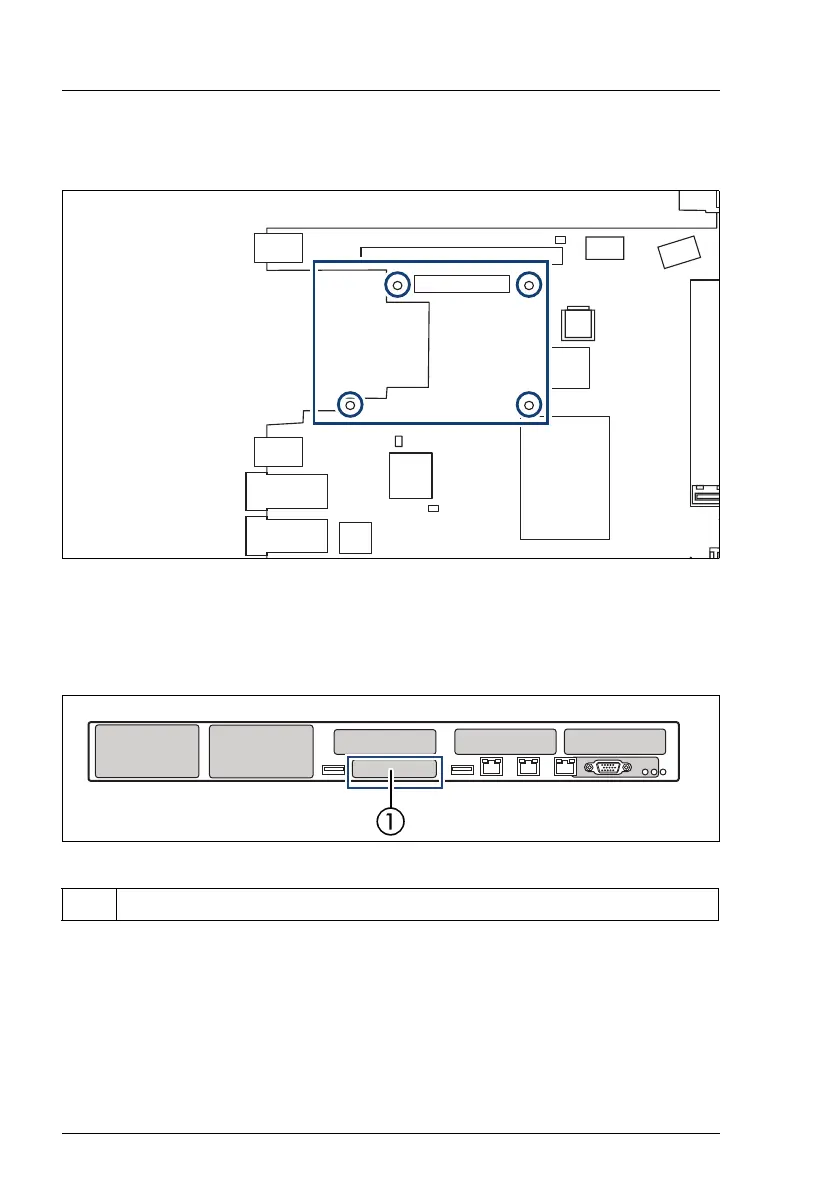
Figure 125: Slot and bolts for OCP modules
Some OCP modules can be equipped with SFP modules. For the installation of
the SFP modules, see section "Handling SFP+ transceiver modules" on
page 206.
Figure 126: Position of OCP module at rear side
1 OCP module
iRMC
S5
external connectors
USB 3.0
Shared
LAN 1
SAT
0-
USB 3.0
Slot riser card / slot 4 (CPU 2)
Slot 4
Micro
SATA
ODD
Slot OCP module
SD
Management
LAN
M.2
SSD1
PC
Po
YE
PCIe
Port 0
RED

Table of Contents

Other manuals for Fujitsu PRIMERGY RX2530 M4

Related product manuals