EasyManua.ls Logo

MacDon FlexDraper FD140 - Adjusting Header Draper Tracking

MacDon FlexDraper FD140
628 pages
Print Icon
To Next Page IconTo Next Page
To Next Page IconTo Next Page
To Previous Page IconTo Previous Page
To Previous Page IconTo Previous Page
Loading...
214683 490 Revision A
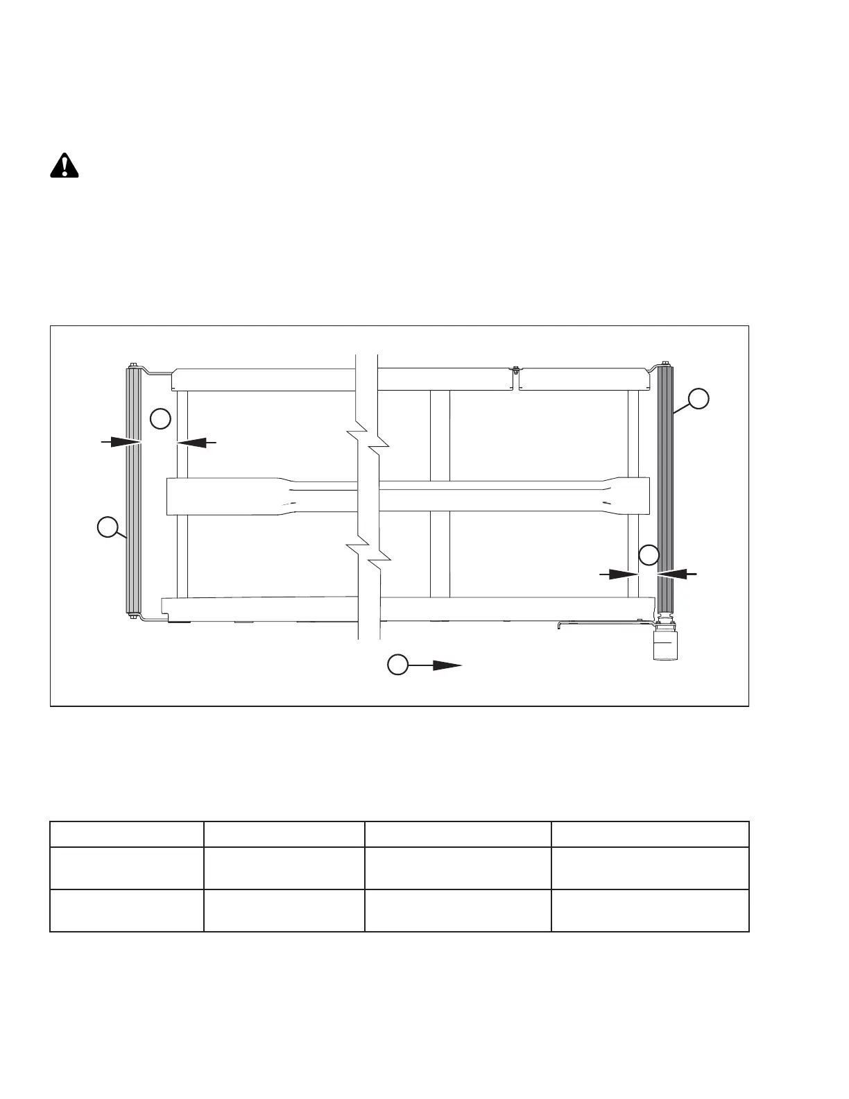
5.14.4 Adjusting Header Draper Tracking
The draper tracking is adjusted by aligning the drive and idler draper rollers.
CAUTION
To avoid personal injury, before servicing machine or opening drive covers, refer to 5.1 Preparing Machine
for Servicing, page 383.
NOTE:
The images shown in the following procedure are applicable to the left draper deck. Use opposite views for the right
draper deck.
Figure 5.192: Draper Tracking Adjustments
1019335
A
B
X
Y
Z
A - Drive Roller B - Idler Roller
X - Drive Roller Adjust Y - Idler Roller Adjust Z - Draper Direction
1. Refer to the following table to determine which roller requires adjustment and which adjustments are
necessary.
Table 5.2 Header Draper Tracking
Tracking At Location Adjustment Method
Backward Drive roller Increase X
Tighten nut (E). Refer to Fig.
5.193, page 491
Forward Drive roller Decrease X
Loosen nut (E). Refer to Fig.
5.193, page 491
MAINTENANCE AND SERVICING

Table of Contents

Related product manuals