EasyManua.ls Logo

Manitowoc GROVE GMK3060 - Page 717

Manitowoc GROVE GMK3060
906 pages
Print Icon
To Next Page IconTo Next Page
To Next Page IconTo Next Page
To Previous Page IconTo Previous Page
To Previous Page IconTo Previous Page
Loading...
Rigging work
12.5 Operating the outriggers
Operating manual 3 302 819 en 12 - 45
GMK3060
13.12.2018
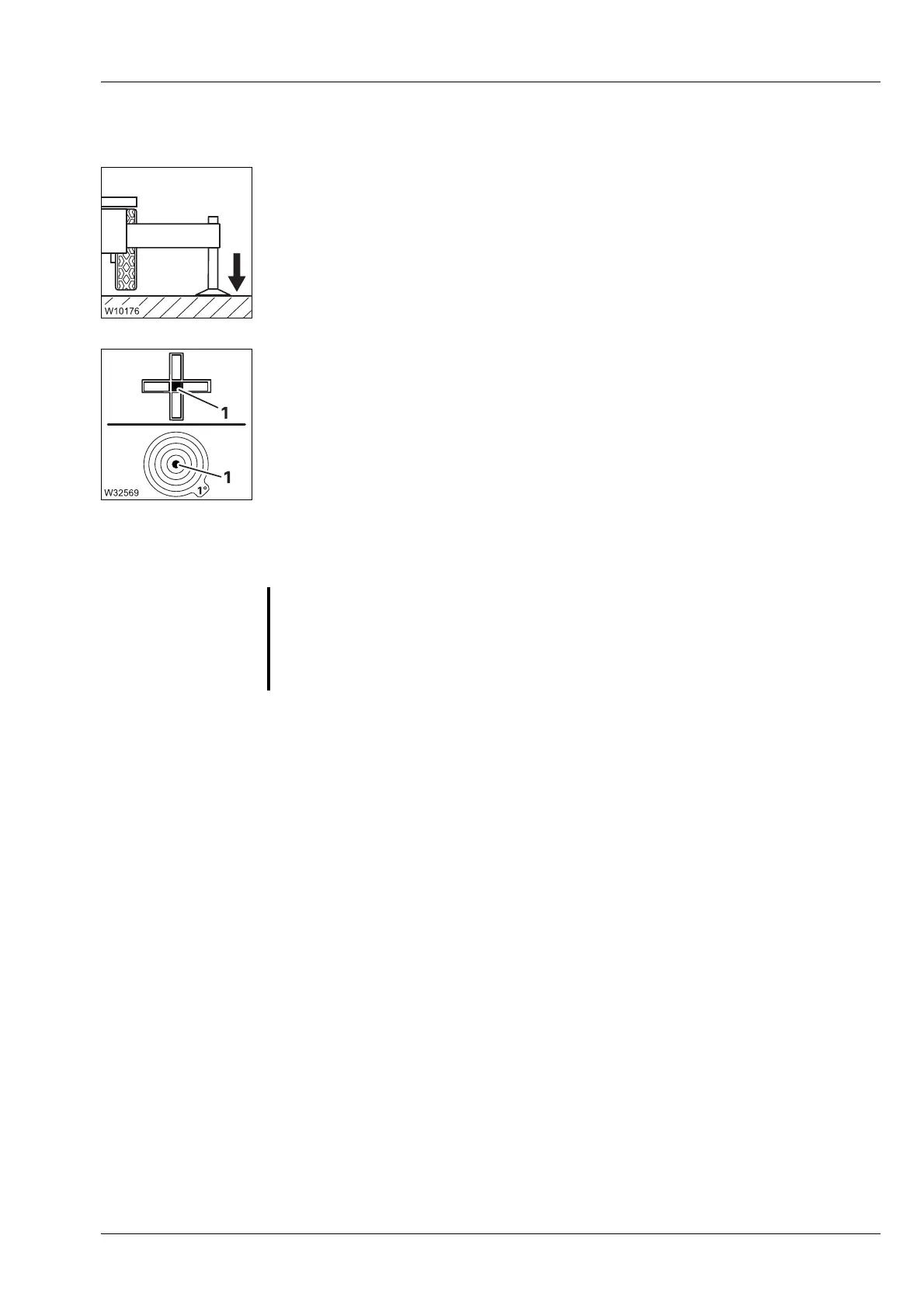
Manual alignment Check that the prerequisites are met; à p. 12 - 44.
Extend all supporting cylinders until none of the wheels is touching the ground.
Level the truck crane with the supporting cylinders until the lamp (1) is the only
one lighting up in the measuring range ;
à p. 12 - 39.
Only lift the truck crane as far as necessary.
Checks to be performed after levelling
During levelling, the ground may give way and the packing may slip.
After you have levelled the truck crane, check:
that all the wheels are lifted off the ground.
that the ground has not given way under any of the outrigger pads,
that the packing is correct for the enlarged load-bearing area.
If slewing is permissible in the current rigging mode:
Slew the superstructure within the permissible slewing range.
Perform the specified checks again.
Check the horizontal alignment on the inclination indicator.
s
G
Risk of accidents due to incorrectly supported truck crane!
Perform the following checks each time you have levelled the truck crane and
correct any misalignments.
Otherwise the truck crane may overturn even when lifting a load allowed by the
RCL.

Table of Contents

Related product manuals