EasyManua.ls Logo

Xerox VersaLink B7035 - Page 787

Xerox VersaLink B7035
1341 pages
To Next Page IconTo Next Page
To Next Page IconTo Next Page
To Previous Page IconTo Previous Page
To Previous Page IconTo Previous Page
Loading...
April 2017
4-147
Xerox® VersaLink® B7025/B7030/B7035 Multifunction Printer
REP 60.3
Repairs and Adjustments
Launch Issue
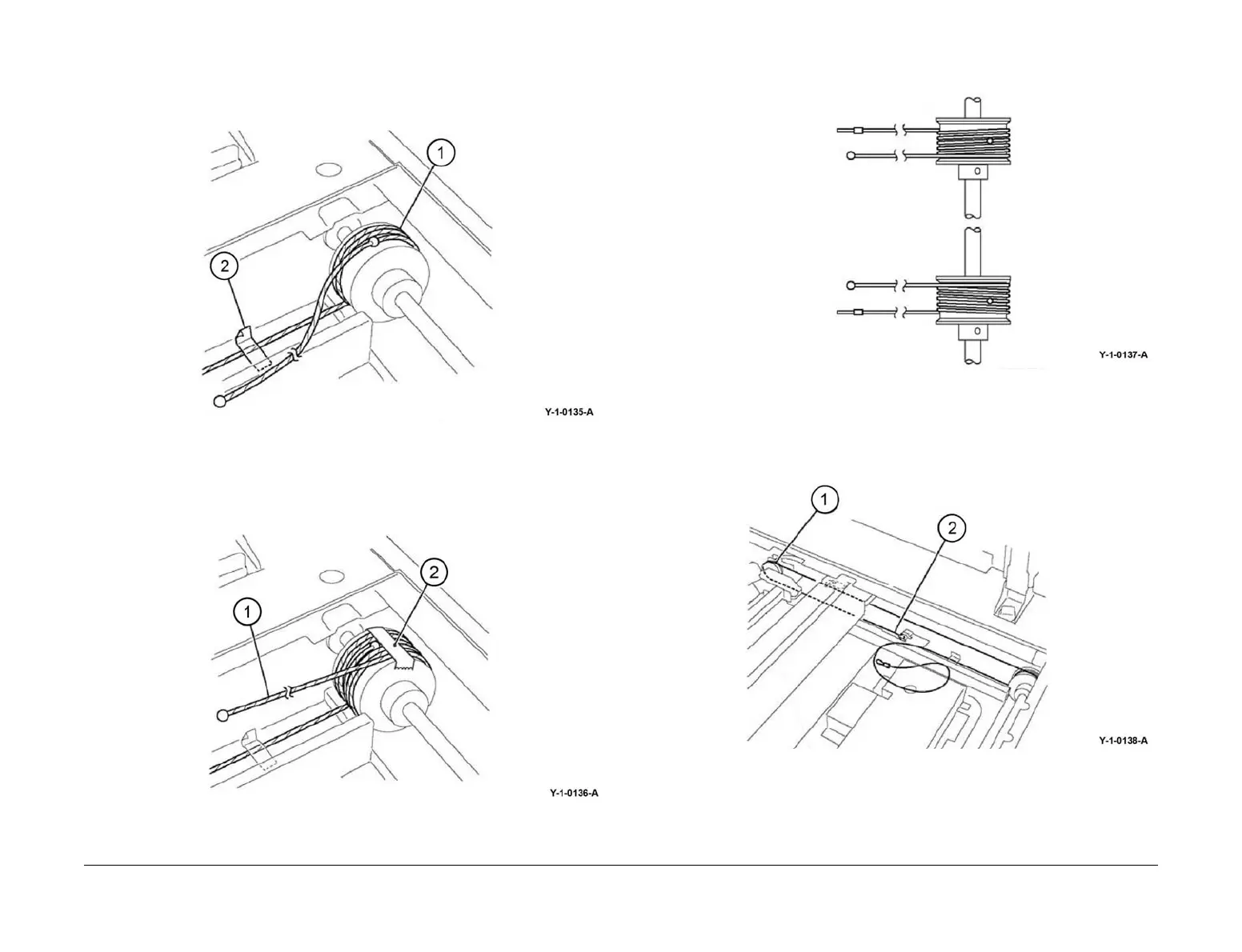
2. Wind the extension spring loop end of the carriage cable around the capstan, Figure 7:
a. Wind the cable (1) 2.5 turns.
b. Use adhesive tape (2) to affix the extension spring loop end of the cable to the
frame.
Figure 7 Capstan winding (1)
3. Wind the end-ball end of the carriage cable around the capstan, Figure 8:
a. Wind the cable (1) 3 turns.
b. Use adhesive tape (2) to affix the cable to the capstan.
Figure 8 Capstan winding (2)
4. Figure 9 shows the correct arrangement of the cables, front and rear.
Figure 9 Cable arrangement
5. Install the end-ball end of the carriage cable, Figure 10:
a. Wrap the cable on the pulley at the front of the half rate carriage (1).
b. Put the end-ball in the notch in the frame (2).
Figure 10 End-ball end installation
Front
Rear
Color: Silver
2.5 Turns
3 Turns
Color: Black
2.5 Turns
3 Turns

Table of Contents

Other manuals for Xerox VersaLink B7035

Related product manuals